Лаги для пола

После заливки фундамента можно уложить на него железобетонную плиту (или создать ее на месте, залив в построенную для этого опалубку).
Тогда деревянные брусья, пропитанные антисептиком, антипиреном и противогнилостным составом, лягут на железобетон — через слой гидроизоляции.
Можно укрепить грунт под основанием пола 15-сантиметровым слоем глины, затем засыпать утрамбованными слоями гравия, песка.
Позже укладывается полиэтилен (с припусками на стены).
На подготовленном и укрытом рулонной гидроизоляцией основании допустимо устроить армированную цементно-песчаную стяжку. На нее уже можно укладывать лаги для деревянного пола.
Обойтись без стяжки в маленькой бане позволят жёсткие плиты пенопласта —толщиной от 10 см.
При заливке фундамента можно предусмотреть дополнительные опоры для основания пола. Такими опорами могут служить отдельные железобетонные или кирпичные столбы на заглублённых песчано-гравийных подушках.
Преимущества и недостатки бани из керамзитобетонных блоков
Керамзит – это гранулы глины, которые обжигаются в специальных печах.
Плюсы керамзитоблока
Преимущества бани из керамзитобетонных блоков:
- экологически чистый материал;
- размер блоков больше, чем размер кирпичей, что ускоряет процесс кладки;
- блоки прекрасно поддаются отделке;
- долгий срок службы;
- большой выбор материала по плотности и размерам;
- низкая стоимость.

За счет более низкого веса по сравнению с кирпичом облегчается процесс работы во время постройки.
Минусы керамоблока
Недостатки бани из керамзитоблокового материала:
- Большое количество пор уменьшает прочность блока.
- Более хрупкий материал по сравнению с кирпичом.
- Не идеальный внешний вид из-за большой пористости.
- Не самый морозостойкий материал.
- Высокая гигроскопичность, что при морозе приводит к разрушению материала.
Баня из керамоблокового материала – неплохой вариант, но требует особого подхода. Такая баня больше подходит для круглогодичного использования и постоянного протапливания, поскольку в зимний период из-за перепада температур керамзит начнет разрушаться. О проекте одноэтажного дома из газобетона, с гаражом и мансардой расскажет эта ссылка.
На схеме отображена структура керамзитобетонных блоков, используемых при строительстве бань
Постройку нужно дополнительно утеплить и сделать гидоро- и пароизоляцию, чтобы избежать излишнего скопления влаги.
Строительство основания
Для постройки бани следует подготовить надежный фундамент столбчатой конструкции или ленточного типа. Баня из блоков, установленная на ленточном фундаменте, устойчивое строение, если фундамент находится на небольшой глубине. Ленточный фундамент потребует меньших финансовых вложений по сравнению со столбчатым основанием. Остановимся на нём более подробно:
- Спланируйте и очистите строительную площадку.
- Выполните разметку периметра постройки согласно проекту.
- Углубитесь согласно разметке на 0,5 метра, выровняйте боковые поверхности и низ траншеи.
- Установите и зафиксируйте каркас из деревянных щитов для будущей ленточной основы.
- Заполните дно траншеи песчано-щебеночной смесью, уплотните подсыпку.
- Разместите в опалубке на подставке арматурный каркас, обеспечив расстояние до основания 5 см.
- Подготовьте бетонный раствор марки М400.
- Залейте бетон, удалите арматурой воздух, уплотните бетонный массив вибратором.
- Спланируйте поверхность фундамента.
- Обеспечьте неподвижность и твердение бетонного массива на протяжении 4 недель.
- Снимите деревянные щиты опалубки.
- Нанесите бетонный раствор на опорную поверхность основания.
После окончательного набора фундаментом прочности приступайте к возведению стен.
Эксплуатационные свойства
Керамзитобетон состоит из связующего (цемента), заполнителя (крупного неорганического — керамзитового гравия).
Также в нем есть добавки для придания смеси или уже готовому изделию тех или иных свойств (например, добавки, вовлекающие воздух для создания закрытых пор).
Когда мы строим баню из керамзитобетонных блоков своими руками, мы должны помнить, что в одном изделии может присутствовать керамзит одной из фракции:
- 0,5–1 см;
- 1–2 см;
- 2–4 см.
Допустимые фракции в одном виде блоков:
- 0,5–2 см
- 1–4 см
Цементный раствор вокруг керамзита может быть плотной структуры, если в его составе есть песок, или пористой — если мелкого заполнителя нет.
Если цемент заполняет не все пространство между фракциями, а только обволакивает и склеивает керамзит наподобие клея, то получается керамзитобетон крупнопористой структуры. Керамзитобетон со сквозными порами для бани не годится.
Информация. В зависимости от фактуры своей поверхности блоки делятся на фасадные и рядовые. У фасадного блока грани могут быть рифлёными, колотыми («фактура под шубу», «скальная») или гладкими. «Набор» фасадных блоков для дома включает угловые элементы. Также бывают цветные фасадные блоки (крашеные после производства, или с колеровкой на всю глубину в процессе производства).
Гранулообразная поверхность (повторяющая форму зёрен заполнителя) или шлифованная (со следами абразивного материала) характерны для рядового блока.
Если стену решено облицевать рядовыми шлифованными керамзитобетонными блоками, то и их можно найти в окрашенном исполнении.
Вентиляция
Некоторые утверждают, что вентиляция в парной не требуется, так как через нее выходит тепло. Однако подобное происходит только при отсутствии контроля воздухообмена. В парной будет очень душно, а ноги начнут замерзать.
Во время банных процедур воздух должен обновляться каждые 2 часа, что требует правильной организации вентиляции. Как правило, входное отверстие делают возле котла, а вытяжное – под потолком в противоположной стороне. Во время прогрева вытяжное отверстие закрывают. После его открытия теплые воздушные массы начинают выходить наружу, что приводит к охлаждению помещения.
Входное отверстие лучше делать за печкой, а вытяжных – пару штук в противоположном углу. Одно вытяжное отверстие должно быть ниже другого. Это позволяет выводить наполовину остывший воздух. Нижнее вентиляционное окно открывают для проветривания парной.
Вентиляция должна быть не только в парилке, но и в каждом помещении. Чтобы исключить нежеланные потери тепла, отверстия можно закрывать вручную, когда нет потребности в проветривании.
Недостатки дома из керамзитобетона
- Высокое водопоглощение. Этот недостаток больше присущ стеновым блокам, где процентное соотношение керамзита в блоке значительно больше чем бетона. Это главная отрицательная сторона керамзитобетонного блока, как и любого пористого строительного блока. Гигроскопичность обусловлена свойствами структуры керамзита. Потому, в регионах с повышенной влажностью и преобладанием отрицательных температур, нельзя оставлять без защитной облицовочной отделки стены из керамзитобетона. В холодное время года, жидкость, которую впитал блок замерзнет внутри стены и кристаллизируясь под воздействием отрицательной температуры станет разрушать блок изнутри. Этот недостаток присущ практически всем стеновым материалам.
Много подделок на строительно рынке. Что бы дом из керамзитобетонных блоков радовал Вас всеми перечисленными достоинствами, для строительства необходимо использовать качественный материал. Блок должен иметь соответствующий вес, не должен крошится. Если силой рук возможно отломать часть блока или в руках можно раскрошить часть блока, это говорит о низком качестве используемого бетона. Или о том, что производитель сэкономил на бетоне, добавил в структуру блока большое количество песка. Такой блок обладает плохой прочностью и будет быстро разрушатся во время эксплуатации.
Для надежности, желательно проверять качество каждой доставляемой партии керамзитобетонных блоков на строительный объект. Один и тот же поставщик может доставить партию разного качества в целях экономии материала.
Много боков делают в кустарных условиях как и шлакоблок.
- Высокая прочность структуры стены из керамзитобетонного блока. С одной стороны это плюс, с другой стороны для эксплуатации может быть минусом. В сравнении , например с деревянной стеной. В керамзитобетонную стену, проблематично что-либо закрепить. Для этого нужно использовать перфоратор, специальные дюбеля и анкера. Обычный саморез закрутить в такую стену не получится.
Неэстетичный внешний вид. Керамзитобетонную стену необходимо отделывать снаружи не только для защиты от влаги и дополнительного утепления, но и для придания красивого внешнего вида дому. Сам по себе керамзитобетон не эстетичен.
По сути, выше перечислены основные недостатки домов из керамзитобетона. Иные недостатки, которые могут возникнуть во время проживания в доме, могут возникнуть уже в результате ошибок при строительстве или из-за низкого качества используемого материала.
Керамзитобетонные дома являются прочными, надежными и долговечными. Это очень недооценённый и относительно дешевый строительный материал, который используется по всему Миру. Дома из блоков можно смело назвать экологически чистыми и пригодными. Но стоит помнить, что даже самый высококачественный и дорогой материал может создать непредвиденные трудности, если нарушена технология производства и монтажа. Потому всегда необходимо доверять строительство своего дома проверенным профессиональным строителям и приобретать материал у надежного производителя.
Возведение стен
Информация. Стены в один этаж из конструкционных керамзитобетонных блоков выдержат нагрузки и без дополнительных железобетонных столбов.
Строительство бани из керамзитобетонных блоков своими руками начинается от угла фундамента. Каждый третий ряд кладки завершают армированием одним из способов:
- укладкой сетки из рифлёной проволоки (подойдут толщина 3 мм и 5-сантиметровые ячейки);
- стеклопластиковой кладочной сетки (со стороной ячейки 30–45 мм);
- стержневой арматуры (в специально вырезанные в опорных поверхностях пазы).
Необходимые инструменты для укладки:
- нетяжёлый резиновый молоток (для усадки блоков);
- уровни: строительный и водяной (имеет смысл каждый ряд проверять на горизонтальность и вертикальную ровность);
- отвесы (на угловых камнях текущего ряда);
- кельма (лучше прямоугольная);
- шнур-причалка (натянутая между угловыми элементами кладки наметит ось или границу стены по горизонтали и вертикали);
- болгарка (для резки камня — для проемов или углов);
- емкость для кладочного раствора. Может пригодиться зубчатый шпатель — для кладочного раствора смеси.
Этап #4 — отделка внутри комнаты отдыха
Внутри комнаты отдыха я предусмотрел другой вариант обшивки. Здесь нет высоких температур и повышенной влажности, поэтому и материалы для изоляции керамзитобетонных блоков могут быть не такими функциональными, как в парной или моечной.
Пирог здесь выглядит так: пенополистирол (ППС), фольга для бани, вентзазор, вагонка.
Схема действий по обшивке комната отдыха выглядит также, как и в парной. Вначале на керамзитобетонные стены набивается обрешетка из брусков, между ними плотно вкладываются пласты ППС (толщина 5 см).

Утепление комнаты отдыха плитами ППС
Поверх них – пароизоляция из алюминиевой фольги с проклейкой швов скотчем. Фольга нашивается на обрешетку с пробивкой степлером. Вентзазор в 2 см обеспечивается контробрешеткой – планками, прибитыми к стойкам обрешетки. Контробрешетка зашивается осиновой вагонкой.

Фольга защищает утеплитель и керамзитобетонные блоки от влаги
В отличие от парной, в комнате отдыха невысокие температуры, поэтому структуру деревянных волокон вагонки можно подчеркнуть лаком. Что я и сделал. Использовал яхтный лак Unica Super от Tikkurila в 2 слоя.

Вагонка в комнате отдыха покрыта лаком
Стены из керамзитных блоков, в идеале, должны быть теплыми, защищенными от пара и влаги. В моей бане теплоизоляционные характеристики блоков (которые и так немаленькие) увеличены за счет утепляющего слоя. Паро- и гидроизоляционный барьер осуществлен с помощью фольгированных изоляторов. В итоге, баня протапливается за пару часов, после вечерних процедур просыхает полностью уже к утру. Никакой сырости, грибков, холода не замечено. Можно сделать вывод, что при правильном «пироге» утепления, керамзитобетонные блоки – прекрасный материал. С их помощью можно построить теплую, сухую и долговечную баню. Причем, при навыках кирпичной кладки, сделать это можно своими руками.
Павел Б.
Типовые решения с чертежами и фото
Основа любого успешного строительства — правильно подготовленный проект. В этом плане вам очень повезло: проекты бани из керамзитобетонных блоков встречаются в свободном доступе в Сети, где вы можете легко подогнать их под особенности своего участка. Среди самых популярных размеров: 4х4, 6х6, 4х6, 5х5. В конечном итоге, характер планировки определяется форматом использования бани:
- только летний сезон;
- только зимний сезон;
- внесезонность.
Разумеется, большая площадь позволяет безболезненно интегрировать в проект не только просторную комнату для отдыха, но также и веранду. Кажется, сущий пустяк, но если так посмотреть, то нет ничего лучше, чем свежий воздух сразу же после выхода из парилки. Предлагаем вам отличную подборку уже готовых проектов и фото бань из керамзитобетонных блоков. К слову, уже разбитую по размерам. В общем, все готово для того, чтобы вы приступали к строительству своими руками. Действуйте!



Строим баню из керамзитобетонных блоков своими руками
Перед тем как начинать строить стены фундамент нужно укрыть специальным изоляционным материалом. Методы гидроизоляции могут быть разные. Можно сделать изоляцию с помощью использования битума и рубероида. Для бани лучше выбирать качественные блоки, без различных дефектов. Для того чтобы прочно закрепить блок на раствор нужно применять молоток, о котором писалось ранее. Но не рекомендуется сильно бить по блоку, чтобы не деформировать. Для внешних стен можно использовать блоки большие, а для внутренних подойдут и маленькие блоки
А также важно не забывать каждый 4 ряд укреплять строение арматурой. Перед тем как класть блоки рекомендуется предварительно каждый блок погрузить в воду. А также не забывайте с помощью уровня измерять ровность стены
И с помощью отвеса измерять вертикальную ровность стены. Для начала рекомендуется выложить углы, а после с помощью натянутой верёвки через эти углы выкладывать другие части стены
А также не забывайте с помощью уровня измерять ровность стены. И с помощью отвеса измерять вертикальную ровность стены. Для начала рекомендуется выложить углы, а после с помощью натянутой верёвки через эти углы выкладывать другие части стены.
Для того чтобы сделать перемычки между проёмами понадобиться или блоки или же уже готовые перемычки, которые значительно облегчат процесс. Перемычки необходимо устанавливать правильно и качественно, поскольку они также берут нагрузку стены.
Советы, которые описаны в данной статье помогут быстро и качественно построить стены будущей бани.
Красивые примеры
Скептический настрой большинства владельцев участков связан с внешним видом блоков. Многие забывают о том, что вовсе не обязательно оставлять дачу в черновом варианте. Керамзит легко поддается трансформации, на него хорошо ложится отделочный материал.

Баня из керамзитоблоков – это один из немногих поводов для мастера проявить фантазию и творческий порыв. То, как будет выглядеть готовое сооружение, благодаря проектному дизайну можно узнать еще на этапе приобретения керамзита. В отличие от технического плана – дизайн-проект реально сделать собственными силами.
Это основная информация о том, как за небольшой бюджет и короткое время построить парную на собственном дачном участке. Немаловажным вопросом остается документооборот. Многие граждане не знают о том, что любое строение на даче требует регистрации. Осуществить ее можно уже после того, как парилка будет сдана.
Опасность самостоятельно возведения заключается в том, что участок может посетить контрольная комиссия. То, как экономят владельцы видно сразу, главное – не нарушать общепринятые ГОСТы, пожарную безопасность и нормы по СНиПу. В случае если здание строит подрядчик – желательно заранее позаботиться о технадзоре.
Какие блоки выбрать?
Отвечая на вопрос о том, какие керамзитобетонные блоки лучше подойдут для строительства бани, необходимо затронуть показатель плотности. Чем он выше, тем более прочной будет ваша конструкция. Соответственно, отдавайте предпочтение вариантам с мелкой фракцией керамзита — это позволит реализовать более высокую несущую способность.

Что же касается влияния той или иной марки блоков на реализацию водопоглощения, то в любом случае вам придется не только утеплять, но и защищать стены от при помощи пароизоляционных материалов, так что заострять внимание на этом не следует. Минимальная стоимость подходящего для строительства бани плотного материала из мелких фракций — от 3,5 тысяч рублей за 1 кубический метр
Делайте выводы, господа!
Минимальная стоимость подходящего для строительства бани плотного материала из мелких фракций — от 3,5 тысяч рублей за 1 кубический метр. Делайте выводы, господа!
Плюсы и минусы материала
Как уже можно было догадаться, в основе этих блоков — все тот же узнаваемый керамзит, который мы частенько используем для утепления. Представляет он собой небольшие гранулы из глины, которые предварительно подвергаются термической обработке. Поэтому керамзитобетонные блоки ничуть не уступают по экологичности той же древесине. Однако на этом их преимущества в качестве строительного материала не заканчиваются.
Преимущества
- очень простое и быстрое возведение;
- отличная сочетаемость с любым типом финишной отделки;
- возможность выбора блоков различной плотности и размера;
- исключение выброса вредных веществ во время протопки;
- эталонная теплоизоляция;
- доступная стоимость.
Конечно, идеального материала в природе не существует. У керамзитобетонных блоков есть и очевидные минусы. Которые, впрочем, погоды не делают.
Недостатки
- относительная хрупкость;
- неказистый внешний вид — и необходимость внутренней и внешней декоративной отделки вследствие этого;
- высокое водопоглощение, что повышает риск появления трещин при сильных заморозках;
- самые дешевые виды блоков имеют низкий показатель прочности;
- необходимость обеспечения надежной гидро и пароизоляции, а также утепления стен и потолка.
Многие путают такие сооружения с банями из пеноблоков — но это принципиально разные материалы, хотя и похожие по своим характеристикам.
Как видим, решая построить баню из керамзитоблоков своими руками, нужно принять во внимание и расходы на отделку стен и крыши, а также реализацию мер для обеспечения качественной защиты бани от холодов и влаги. Иначе вы рискуете потерять только что отстроенную баню уже буквально через несколько лет
После этой информации вы все еще не передумали? Тогда переходим к следующему этапу.
Достоинства и слабые стороны
Блоку из керамзита нечем привлечь насекомых и грызунов. Нечему гнить и гореть. Он прочен и долговечен.
В то же время керамзитобетонные стены долго прогреваются, а остывают неохотно.
Баня из этого материала получается более инерционна, чем деревянная.
А по сравнению с кирпичом крупный камень не позволяет «тонко» выбирать размеры сооружения.
Керамзит отличает неоднородность свойств отдельных гранул, по прочности и плотности. Маленькие зёрна — до 1 см — менее вспучены и поэтому более плотные.
Страдают изделия из керамзитобетона от небрежной перевозки, погрузки и выгрузки вручную. Их нельзя ронять и бросать.
Этап #2 — наружная отделка
Снаружи керамзитобетонные блоки нуждаются в защите от влаги и ветра. Традиционный защитный слой — обычная цементная штукатурка.
Замес раствора был выполнен в соотношении 1:4 (цемент и песок). Сначала я оштукатурил баню один раз, затер теркой до однородности. После высыхания, на следующий день, нанес еще один слой и снова затер. Общий слой штукатурки составил примерно 1,5 см.

Оштукатуривание стен бани цементным раствором
Сначала думал, что буду шпаклевать наружный слой штукатурки, потом передумал и решил ее сразу покрасить фасадной краской. Подобрал недешевую краску на акриловой основе светло-бежевого цвета. Перед покраской прошелся по штукатурке грунтовкой для наружных работ, затем – нанес краску в 2 слоя. Серый цвет штукатурки перекрылся полностью.

На штукатурку нанесено 2 слоя фасадной краски
Подведение коммуникаций
Подведение коммуникаций зависит от бюджета строительства. Можно проложить полноценный водопровод и канализацию. Но при экономном варианте вполне можно обойтись баком для нагреваемой воды (нагрев осуществлять при помощи тэна).

Для охлаждения установить резервуар для холодной воды либо соорудить на улице летний душ.
Подачу воды можно осуществлять из емкостей с горячей и холодной водой, установленных на разных уровнях. Бак с горячей водой должен быть установлен выше. Для отвода канализации в нескольких метрах от бани можно выкопать канализационную яму и подвести к ней отводную трубу.
Строим дом из керамзитобетонных блоков
Разобравшись с характеристиками, достоинствами и недостатками продукции, изучив методы расчета потребности в стройматериале и произведя его покупку, можно приступать к строительным работам. Чтобы возвести прочный и долговечный дом из керамзитобетонных блоков своими руками придерживайтесь проверенных технологий.
Общий алгоритм постройки включает:
- сооружение фундамента;
- возведение стен;
- обустройство крыши;
- гидроизоляцию, утепление, облицовку.
Остановимся подробнее на каждом пункте.
Фундамент для дома из керамзитобетонных блоков
При выборе типа фундамента в первую очередь необходимо ориентироваться на структуру и состав почвы, а также уровень подземных вод.
Фундамент для дома из керамзитобетонных блоков
Из всего многообразия фундаментов для сооружений из легких бетонов подходит только три вида:
- ленточный;
- свайный;
- плитный.
Произведя анализ грунта на месте строительства, можно определить какой из фундаментов будет предпочтительнее. Плитное основание оправдано на неустойчивых, склонных к подвижкам грунтах. За счет большой площади и увеличенной прочности оно способно компенсировать изгибающие нагрузки и предотвратить растрескивание материала при сдвигах почвы. Но имеется нюанс, о котором нужно знать – плитное основание трудоемко в обустройстве.
Оптимальным, при низком залегании грунтовых вод, является ленточный фундамент.
Он имеет ряд преимуществ перед остальными видами оснований:
- равномерно распределяет нагрузки, что предотвращает появление трещин;
- позволяет самостоятельно произвести заливку, поскольку в процессе работ не требуется крупногабаритная техника;
- допускает обустройство полноценного подвального помещения.
Как залить ленточный фундамент
Работы по заливке ленточного фундамента проводите по следующему алгоритму:
- Спланируйте поверхность площадки. Произведите корчевку деревьев и кустарников. Мелкую растительность удалите вручную или с помощью химикатов.
- Произведите разметку основания, используя колышки и веревку.
- Выкопайте траншею глубиной, превышающей уровень промерзания почвы. Подравняйте стенки и дно траншеи.
- Подготовьте и установите опалубку. Для опалубки можно использовать обрезки досок или воспользоваться фанерными щитами.
- Засыпьте в траншею щебеночно-песчаную смесь. Произведите трамбовку.
- Соберите армирующий каркас. Соединение металлических прутков можно выполнить с помощью сварки или вязальной проволоки.
- Подготовьте бетонный раствор согласно рецептуре. Используйте для работ бетонный раствор не ниже марки М400.
- Залейте готовый состав в траншею. Тщательно утрамбуйте раствор для удаления воздушных пузырей.
- Выровняйте поверхность. Накройте полиэтиленом для сохранения влажности.
- После завершения процесса твердения снимите опалубку.
- Проведите гидроизоляцию фундамента.
После набора основанием прочности приступайте к возведению коробки.
Кладка стен
Профессионалы советуют при кладке керамзитобетонных блоков пользоваться клеевыми составами
Работы по возведению стен двухэтажного дома из керамзитобетонных блоков так же, как и дачного дома из керамзитобетонных блоков проводите по общему алгоритму:
- Уложите первый ряд. Кладку начинайте с угловой зоны.
- Произведите контроль горизонтальности с помощью уровня.
- Уложите следующий ряд, смещая элементы относительно нижнего уровня на треть или половину толщины.
- Производите усиление кладки через каждые 3-4 ряда. Используйте для этого металлические прутья или армирующую сетку.
- Усильте дверные и оконные проемы.
- Проведите на верхнем уровне бетонирование армопояса для установки кровельной конструкции.
По окончании работ приступайте к монтажу крыши.
Обустройство крыши
Крыша, как и фундамент – залог долговечности строения. Прежде чем приступать к монтажу кровли продумайте конструкцию, выберите подходящий материал перекрытия. Экономить при выборе кровельного материала не стоит.
Важно, чтобы он был:
- долговечным;
- прочным;
- устойчивым к воздействию природных факторов;
- экологически чистым.
Обустройство кровли дома
Для монтажа крыши подготовьте следующие материалы:
- деревянный брус 150х150 мм для мауэрлата;
- обрезную доску для обрешетки;
- кровельный материал;
- метизы для крепления элементов конструкции.
Руководствуясь документацией, соберите каркас и закрепите кровельный материал.
Как сделать фундамент для бани из керамзитобетонных блоков

Это первый и важный этап любого строительства. Традиционно для бани применяют столбчатый или ленточный фундамент. Оба варианта подходят для основания кладки из блоков керамзитобетона, но лучше остановить свой выбор на мелкозаглубленном ленточном фундаменте.
Производство необходимого количества керамзитоблоков можно легко организовать дома, подробнее об этом написано тут.
Перед заливкой ленточного фундамента выкапывают и подготавливают котлован:
- Очищают площадь земли под баню в соответствии с разметкой.
- Выкапывают траншеи под фундамент там, где будут наружные и внутренние несущие стены. Соотношение глубины и ширины канав должно быть приблизительно 40х50 см.
- На тщательно выровненное дно засыпают песчаное, а потом щебневое основание толщиной не менее 0,1 м каждое и выравнивают их.
На каждом этапе подготовки и возведения фундамента необходимо проверять ровность при помощи ватерпаса.
После подготовительных работ приступают к заливке основания:
- монтируют опалубку;
- укладывают в нее арматуру;
- заливают цемент;
- через 1-2 недели снимают опалубку.
После разметки до возведения фундамента необходимо измерить диагонали будущего строения. Разница между ними не должна превышать 1 см.
Похожие:
На этапе возведения фундамента необходимо позаботиться о выводной канализационной трубе и о водоснабжении.
Строим баню из блоков: правильная последовательность действий


Теперь можно перейти непосредственно к строительным работам.
Создание бани из керамзитобетонных блоков предполагает следующую последовательность действий:
- Подготовка и создание фундамента.
- Возведение стен и настил пола.
- Кровельные работы.
- Работы по утеплению, паро- и гидроизоляции помещения.


Теперь более подробно рассмотрим каждый из этапов.
Итак:
В соответствии с проектным планом сделать ленточный фундамент. После того как он будет готов, сверху на него следует настелить два слоя рубероида. Это нужно для хорошей гидроизоляции. Затем, на слой раствора необходимо уложить армированную сетку, для придания дополнительной прочности конструкции.
Далее можно переходить к кладке первого ряда стен из блоков. И здесь просто не обойтись без строительного уровня. Потому что от точности самого первого ряда будет зависеть надежность всей остальной постройки. Также, в этом случае, становится практически минимальным риск появления трещин в стенах из-за несоответствия уровню.
Продолжать кладку остальных стен нужно, соблюдая такие же условия, как и для кирпича – делая смещение на половину длины блока. Единственное отличие от кирпичной кладки – в случае использования керамзитобетона следует через каждые 2 – 3 ряда устанавливать армированную сетку. Это необходимо для придания жесткости и дополнительной прочности постройке.
Дойдя до самого верхнего ряда стен, следует предусмотреть наличие ниш для балок – основы кровли. В случае двускатной крыши, которая будет оптимальным вариантом, необходимо установить стропила и обрешетку. Кровельный материал можно выбрать любой, исходя из личных пожеланий.
Следует знать, что от типа выбранного материала для крыши будет зависеть шаг, с которым набивается обрешетка
Также, следует предусмотреть и то, что в нишах между стропилами необходимо поместить теплоизоляционный материал, а затем, по защитному слою, провести пароизоляцию.
После того как баня построена, следует большое внимание уделить ее тщательному утеплению изнутри
Особенно это важно для помещения парной, в котором следует делать специальную конструкцию, исключающую потерю тепла через стены
Для начала следует сделать теплоизоляцию пола, укладывая ее внахлест на стены, примерно на 20 см, затем приступить к утеплению стен. Оно включает в себя установку обрешетки (с шагом, равным ширине утеплителя), непосредственно сам утеплитель и специальную фольгу, которая отражает тепло
При этом отражающий материал следует укладывать внахлест и дополнительно проклеивать.
Пожалуй, это самые основные моменты, которые следует знать по данной теме. Изучив плюсы и минусы бани из керамзитобетонных блоков, взвесив все «за»и «против», можно смело приступать к строительству и создавать своими руками настоящий шедевр!
Составление проекта
Любое строительство начинается с составления проекта. Чем точнее и подробнее в нем будут отражены все нюансы, тем легче будет воплотить в жизнь задуманное
При составлении проекта бани из блоков важно учитывать не только свои пожелания, но и сопоставлять возможности
Существует множество вариантов строительства бани. Можно сделать с верандой, двухэтажную, с бассейном и без и т.д. Оптимальным бюджетным вариантом можно считать обычную баню размером 5*5 м.кв.
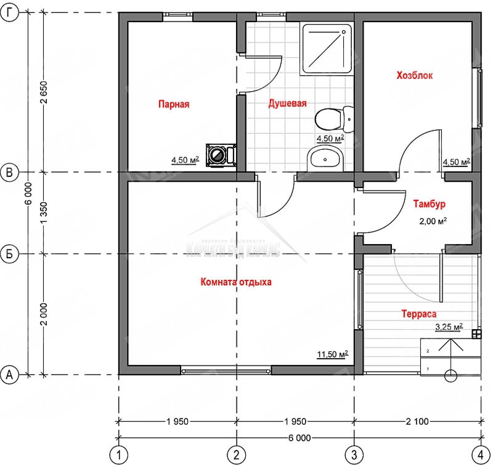
Поскольку баня компактная, то в помывочной можно установить душ или душевую кабинку. Перегородки в таком случае возводятся из пеноблоков, предназначенных для строительства стен внутри помещений. В каждой комнате должно быть окно. Оно служит не только для естественного освещения, но и для вентиляции. Комнату отдыха можно совместить с раздевалкой и расположить в ней топку.
Классическая планировка бани предполагает наличие парной, моечной и предбанника
Внутренняя отделка парной производится деревянной вагонкой, что позволит любителям традиционной бани чувствовать себя уютно в помещении. Сэкономленные на строительстве средства можно направить на установку хорошей качественной печи.
Лаги для пола
После заливки фундамента можно уложить на него железобетонную плиту (или создать ее на месте, залив в построенную для этого опалубку).
Тогда деревянные брусья, пропитанные антисептиком, антипиреном и противогнилостным составом, лягут на железобетон — через слой гидроизоляции.
Можно укрепить грунт под основанием пола 15-сантиметровым слоем глины, затем засыпать утрамбованными слоями гравия, песка.
Позже укладывается полиэтилен (с припусками на стены).
На подготовленном и укрытом рулонной гидроизоляцией основании допустимо устроить армированную цементно-песчаную стяжку. На нее уже можно укладывать лаги для деревянного пола.
Обойтись без стяжки в маленькой бане позволят жёсткие плиты пенопласта —толщиной от 10 см.
При заливке фундамента можно предусмотреть дополнительные опоры для основания пола. Такими опорами могут служить отдельные железобетонные или кирпичные столбы на заглублённых песчано-гравийных подушках.
Этапы строительства своими руками
Прежде чем начать возведение стен бани, выполняют подготовительные работы, которые заключаются в следующих моментах:
- Определение проекта и его подтверждение в местном архитектурном бюро.
- Разметка территории, копка котлована, обустройство ленточного или столбчатого (свайного) фундамента, время для усадки 3-6 месяцев.
- Подготовка материала и инструментов к работе.
- Укладка на фундамент двух слоев битума, заливка пола, а также места для будущей кладки печки.
Затем начинают возводить конструкционные несущие стены по периметру постройки, по размеченным углам с маячками и натянутому строительному шнуру.
Этапы строительства после всей подготовки будут следующими:
С помощью песчано-цементного раствора, М400-М500, начать кладку от углов, по всей площади.
Второй и последующие слои керамзита укладывать на клей, в шахматном порядке, с джутовыми лентами и армировкой, через каждые 3-4 слоя.
Продолжать кладку до армопояса, не забывая про обустройство дверного и оконного проема, перемычки и плиты перекрытия.
Выполнить полную кладку банной печки с выходной трубой.
Проверить наличие вентиляционного выхода, установить контробрешетку.
Выполнить создание армопояса, уложить брусья, создать каркас из стропил.
Обустроить верхние слои с помощью плит перекрытия, укладки гидроизоляционного слоя, засыпки щебня в пустоты и потолочной бетонной заливки.
Стеновые конструкции, согласно проекту, закончить укладкой кровельного материала.
Поставить окна, навестить двери, обустроить порог (деревянный или монолитный).
Заняться внутренним утеплением с помощью устройства стенового пирога – минеральная вата или пенополистирол + фольгированный материал, не забывая оставлять вентиляционные зазоры. Крепить утепление можно с помощью алюминиевого (деревянного) каркаса и клея. Или просто одного клеевого состава, с приспособлениями для крепления
Утепление – это важное требование для бань из керамзитобетона.
Выполнить внутреннюю отделку бани вагонкой из качественного древесного материала.
Построить перегородочные стены, обустроить комнаты, заняться коммуникациями, выложить плитку.
Выполнить наружную отделку дома после использования гидроизоляционного материала. В качестве отделки лучше всего использовать облицовочный кирпич, но можно также брать и другие материалы, в том числе, разноцветный второй слой керамзитобетона, более мелкого по габаритам.
После окончания работ проверяют функции вентиляции, пароизоляции, коммуникаций. Обустройством комнат для душа, переодевания, чайной (небольшой кухни) можно заняться по окончании всех черновых конструкционных работ.





































