Конструкция и принцип работы
Конструкция клапана приточной вентиляции довольно примитивна. Прибор состоит из цилиндрического корпуса, диаметр которого составляет 6-14 см. Внутри клапана находится тепло- и шумоизоляция, а также фильтр.
Модели разных производителей внешне могут выглядеть по-разному. Некоторые «приточники» оснащаются дополнительными элементами и функционалом. Например: температурным датчиком, регулировкой влажности, вентилятором, системой дистанционного управления
Отдельные элементы типовой конструкции клапана выполняют следующие функции:
- Воздуховод. По трубе воздушные массы поступают снаружи в помещение. Диаметр воздуховода во многом определяет производительность приточного клапана. Как правило, этот элемент изготавливается из пластика.
- Вентиляционная решетка. Размещается с внешней стороны стены и предназначается для защиты внутренних элементов прибора от мелких животных, попадания осадков и мусора. Оптимальный материал изготовления – алюминий. В некоторых моделях предусмотрена антимоскитная вставка из полимерных нитей.
- Тепло-шумоизоляционная вставка. Проходит через весь воздуховод и предохраняет стену от промерзания, обеспечивая снижение уличного шума.
- Фильтрующий элемент. Очищает поступающий воздух от пыли.
- Декоративная крышка. Устанавливается с внутренней стороны стены. Пластиковый оголовок снабжается ручкой для регулировки воздушного потока.
Многие производители оборудуют клапан уплотнительным кольцом с заслонкой. Обе детали размещаются с внутренней стороны стены и сдерживают порывы ветра.
С помощью проветривателя можно управлять воздухообменом, принудительно нагнетая или подавляя циркуляцию воздушных масс. При правильном размещении клапана сквозняки не возникают
Система функционирует по простому принципу. Воздух, проходя через решетку и фильтр, очищается, перемещается по тепло-шумоизоляционному каналу и немного прогревается. В ограниченном пространстве трубы скорость воздушного потока снижается, он поступает в регулируемую заслонку, а затем сквозь технологические отверстия – вовнутрь помещения.
Вентиляция может осуществляться непрерывно при закрытых окнах. При этом помещение охлаждаться не будет. Если в помещении установлены пластиковые окна, то возможно стоит рассмотреть вариант установки приточного клапана на окно.
Однако для нормальной циркуляции воздуха должны выполняться следующие условия:
- наличие исправной вытяжки;
- движение воздушных масс даже при закрытых дверях внутри помещения – надо предусмотреть зазор между полом и дверью в 1,5 см или обустроить вентиляционные решетки.
Работу вытяжки можно проверить экспериментальным путем. Открыть форточку и поднести к решетке тонкую бумагу. При хорошей тяге лист притянется к вентиляционному каналу.
Если лист не удерживается на решетке, значит вентиляция нуждается в чистке. В теплое время года воздух очень «тяжелый» и проверить исправность естественной вентиляции не получится
Критерии выбора оконных клапанов вентиляции
От выбора типа вентиляционного клапана зависит микроклимат в доме, поэтому к данному вопросу стоит подходить, учитывая максимальное количество критериев. Наибольшее значение имеют следующие из них:
- пропускающая способность изделия. Существующие нормативы рекомендуют объем приточного снаружи воздуха на уровне 30 куб.м./час на одного человека;
- уровень звукоизоляции конструкции после установки клапана. Данный показатель не должен превышать 30-35 дБ;
- эффективность работы в зимних условиях при низких наружных температурах. Клапан должен быть выполнен с соблюдением требований по изоляции внутренних конструкций, предотвращающей возможное обледенение, а также попадание в помещение слишком большого количества холодного воздуха;
- механизм регулирования. Разработаны автоматический, ручной и смешанный (комбинация из двух предыдущих) способы регулирования количества поступающего извне воздуха;
- место установки изделия. Помимо монтажа непосредственно на оконную конструкцию, существуют варианты с установкой на стену. Они более дорогие и требуют значительных сопутствующих работ, например, по пробивке и прокладыванию каналов к клапану;
- способ установки клапана. Его монтаж без снятия оконного блока гораздо удобнее и дешевле альтернативных вариантов.
Рис. 6. Клапан до установки.
Способы организации
О рганизовать щелевое проветривание можно 4 способами:
- Установка гребенки (фурнитура, докупается и устанавливается отдельно).
- Установка оконного клапана (фурнитура, докупается и устанавливается отдельно).
- Через режим щелевого проветривания на пластиковых окнах (если он предусмотрен — ничего покупать и устанавливать не придется).
- Через отверстия в оконном профиле.
Ниже рассмотрим каждый вариант более подробно.
Гребенка (+видео по установке своими руками)
Гребенка (ограничитель открывания, фиксатор) — планка с выемками , которая крепится между рамой и ручкой на створке. Это приспособление не позволяет створке открываться или закрываться, фиксируя ее на выбранном расстоянии.
Регулирование ступенчатое (чаще всего — трехступенчатое или четырехступенчатое). То есть хозяин может регулировать степень открытия рамы.
О сновные сведения:
- Сколько стоит: 150-300 рублей.
- Сколько воздуха пропустит: достаточно для дыхания 1-3 человек, даже на самом первом делении (когда створка открыта минимально).
- Когда стоит выбирать: устройство стоит использовать, если не т режима щелевого проветривания, а клапан вы не сможете установить самостоятельно, и не хотите платить специалистам.
Подробнее про (виды, производителей, расценки, способы установки) можно почитать отдельно.
Оконный клапан (+видео с принципом работы)
Оконный клапан — плоский корпус с отверстием и фильтром-шумоглушителем, который врезается в раму. Через клапан воздух может свободно поступать с улицы в квартиру естественным способом.
Если при микропроветривании и использовании гребенки створка открывается (пускай и совсем немного), то клапан обеспечивает приток при полностью закрытом окне. Некоторые модели можно отрегулировать — у них есть регулятор для изменения сечения отверстия. То есть клапан можно закрыть полностью, либо прикрыть (актуально зимой, в сильные морозы).
Основные сведения:
- Сколько стоит: от 1000 рублей.
- Сколько воздуха пропустит: в среднем 10-40 м³/ч
- Когда стоит выбирать: если хочется сохранить максимальную шумоизоляцию (к примеру, если под окнами — оживленная дорога).
Подробнее про (производителей, расценки, способ установки) можно почитать отдельно.
Окно с щелевым проветриванием (+видео)
Самый удачный вариант — если микрощелевое проветривание предусмотрено в окне.
Если вы собираетесь менять окна — про этот механизм стоит спросить у продавца. Если окна уже стоят — можно проверить, есть ли в них такая функция. Для этого необходимо повернуть ручку на 45 º . Если она повернется и зафиксируется в таком положении — режим микропроветривания есть.
В таком режиме окно не закрывается полностью: между рамой и створкой остается небольшая (в 3-5 мм) щель, через которую воздух попадает внутрь.
Основные сведения:
- Сколько стоит: если в ваших окнах есть такой режим — нисколько. Если покупаете новое окно — фурнитура с микропроветриванием будет стоить на 1000-2000 лишних рублей к «обычной» стоимости.
- Сколько воздуха пропустит: щель шириной в 3-5 мм может пропустить в среднем около 30-50 м³/ч. Цифры очень примерные, и зависят от высоты рамы и мощности вытяжной вентиляции.
- Когда стоит выбирать: если вы собираетесь менять окна.
Среди главных преимуществ такой функции выделяют:
- Постоянный воздухообмен в помещениях, даже при неблагоприятных погодных условиях. Минусовая температура или сильный ветер не позволяют открыть окна без дискомфорта обитателям даже на несколько минут. Функция проветривания обеспечит возможность притока воздуха без сквозняков.
- Борьба с конденсатом. Микропроветривание незаменимо в стеклопакетах на кухне. Интенсивная эксплуатация мультиварки, плиты или духового шкафа приводят к образованию пара в воздухе и конденсата на поверхностях. Без непрерывного проветривания капельки воды могут стать благодатной средой для роста плесени.
- Гигиеничность воздуха. Поступление свежего воздуха в комнате позволяет снижать концентрацию вредных микроорганизмов и болезнетворных бактерий.
- Сохранение тепла в доме в зимнее время. По замерам специалистов, микропроветривание окна имеет среднюю интенсивность не более 12–15 куб. метров в час. Это практически не влияет на температуру в доме, за несколько часов она может снизиться всего на полградуса.
Виды клапанов для окон ПВХ
Приточные клапаны различаются по конструкции и способу управления — от этого зависит их стоимость, эффективность, сложность установки и обслуживания.
Ручные и автоматические
Поток воздуха, идущий через клапан, в зависимости от конструкции устройства, может быть постоянным или регулируемым. Второй вариант более удобен в использовании, поэтому гораздо популярнее первого. Регулировка интенсивности проветривания может осуществляться вручную или автоматически.
Ручной предполагает наличие специальной задвижки, которая открывает и закрывает доступ воздуха в помещение и регулирует пропускную способность устройства.
Плюсы:
- низкая стоимость;
- простая конструкция;
- возможность полностью перекрывать доступ воздуха с улицы и открывать клапан, когда нужно.
Минусы:
- для эффективной работы нужно участие человека, чтобы вовремя открыть и закрыть задвижку;
- человек управляет им, полагаясь на интуицию и собственные ощущения, без учета влажности воздуха.
Приточный клапан с ручным управлением.
Клапан с автоматическим управлением способен выполнять свою функцию без участия человека, проветривая помещение либо на определенный объем воздуха, либо до достижения комфортных показателей влажности.
Плюсы:
- клапан работает, даже если никого нет дома;
- достаточно выставить нужные настройки и можно забыть об устройстве;
- устройство способно постоянно поддерживать хороший микроклимат в помещении.
Минусы:
- высокая стоимость;
- некоторые модели не имеют возможности для полного отключения вентиляции.
Виды устройств по конструкции
Конструкция приточного клапана определяет способ его установки. Есть несколько видов:
- фальцевые (без фрезеровки);
- щелевые (с фрезеровкой);
- накладные;
- встроенные в ручку.
Фальцевый приточный клапан — самый простой в установке. Его монтируют в пространство между створкой и рамой. В комплект входит более тонкий уплотнитель, который ставят только в месте крепления клапана, таким образом, получается небольшая щель, длиной от 17 до 40 см. Клапан состоит из двух частей: воздухозабора (козырька), который устанавливается на улице, выпускной части — она монтируется изнутри. Поток воздуха можно регулировать. Пропускная способность устройства — от 5 м³/час.
Плюсы:
- невысокая стоимость;
- простой монтаж своими руками;
- при необходимости легко демонтировать и вернуть створке герметичность.
Минусы:
- сравнительно низкая пропускная способность;
- подходит только для окон с открывающимися створками.
Фальцевый клапан.
Есть более сложные в монтаже устройства — щелевые, для их установки необходимо фрезеровать створку. Они подходят для поворотно-откидных и глухих створок. Но во втором случае придется вырезать отверстия и в металлической армировке, которая расположена внутри рамы.
Такие конструкции могут состоять из одного цельного блока или двух раздельных: один из них устанавливается на улице, второй — в помещении. Для их монтажа требуется сделать отверстия вытянутой формы в верхней части наплава створки и наплава рамы. Для этого желательно иметь шаблон.
Щелевой клапан
Пропускная способность щелевого клапана — до 40 м³/час. Этого достаточно, чтобы в помещении, где проживают два человека, всегда был свежий воздух.
Плюсы:
- высокая пропускная способность;
- подходит для любых окон, в том числе глухих;
- большинство моделей оборудованы системами для сохранения звукоизоляции и фильтрами.
Минусы:
- стоит дороже, чем фальцевый;
- для установки необходимо нарушить целостность рамы и створки;
- сложный в монтаже — установку стоит доверить специалистам.
Принцип работы клапана установленного с фрезеровкой.
Наиболее эффективный приточный клапан — накладной или встроенный. Он способен пропускать до 100 м³/час свежего воздуха. Для жилых помещений это слишком интенсивный поток, поэтому такие устройства используются в крупных и многолюдных помещениях. Их установку необходимо запланировать до монтажа окон, так как прибор встраивается в пространство для стеклопакета и размер створки необходимо подогнать под габариты устройства для вентиляции.
Встроенный клапан.
Еще один вид устройств для вентиляции — оконные ручки с приточными клапанами. По сути это те же щелевые, но пропускная способность их гораздо ниже, так как поток идет не через цельную щель в створке, а по трубкам, которые соединяют улицу с помещением.
Для установки необходимо снять старую ручку, просверлить сквозные отверстия по шаблону, вставить трубки и зафиксировать части ручки. Поток воздуха регулируется задвижкой.
Оконная ручка с вентиляцией.
Когда нужно ставить клапаны на металлопластиковые окна
Мы рекомендуем использовать оконные приточные устройства лишь в крайнем случае, когда другие способы организовать подачу воздуха недоступны. Причины:
- Из-за маленького размера проточного отверстия вентиляционный клапан для пластиковых окон пропускает недостаточное количество воздуха. Производители заявляют пропускную способность 10…30 м³/ч (в зависимости от типа устройства), но указанные цифры не соответствуют действительности.
- Установка клапана-проветривателя подразумевает нарушение конструкции ПВХ окна — удаление части штатного резинового уплотнителя или фрезерование сквозной щели в профиле рамы.
- Работа подобной «приточки» сильно зависит от эффективности естественной вытяжки. Если вытяжная шахта в квартире работает плохо, поток свежего уличного воздуха будет мизерным.
- Сквозь открытый канал внутрь рамного профиля могут забраться насекомые и поселиться там (например, осы). Обязательно нужно придумывать какую-то сетку либо заглушку на летний период.
- В клапанах зачастую отсутствует воздушный фильтр, в окне начнет скапливаться пыль. Вычистить эту грязь довольно проблематично.
Схема движения воздуха в частном доме при естественной вентиляции. Устройствами для подачи наружного воздуха могут служить оконные и стеновые клапаны, бризеры, рекуператоры
Расход воздуха через щелевой клапан нетрудно посчитать. Чтобы в комнату проникало 30 м³/ч воздуха со скоростью 1 м/с (это максимум для природной вентиляции), проходное сечение канала должно составлять F = 30 / 3600 х 1 = 0.0083 м². Используем формулу, представленную в статье о расчетах воздухообмена для частного дома.
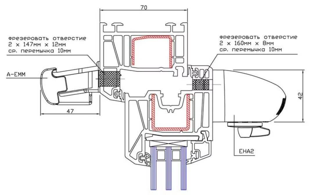
Теперь сравним эту цифру с данными производителя. Под оконный вентклапан Aereco E-EMM² с повышенным расходом до 35 м³/ч делается 2 технологических отверстия размером 172 х 16 мм, общее сечение щели равно 2 х 0.172 х 0.016 = 0.0055 м². Тогда при скорости 1 м/с получаем всего 20 кубов воздуха за 1 час. Производительность клапанов других фирм (Air-box, ВЕНТС и так далее) еще меньше.
Вывод. Для естественной приточной вентиляции лучше установить в каждой комнате стеновой клапан, расположенный возле оконного проема или под подоконником. В квартирах со слабой вытяжкой можно применять климатические установки с принудительным нагнетанием воздуха вентилятором — бризеры, рекуператоры.
Монтаж оконной вентиляции своими руками
Для самостоятельной врезки клапана необходимо учесть несколько важных моментов:
- работу лучше проводить в тёплое время года;
- створку окна придётся снять с петель;
- надёжно установить снятую конструкцию в наклонном или вертикальном положении;
- позаботиться об освещении;
- подготовить необходимый инструмент.
Действовать нужно аккуратно, соблюдать точность, при сверлении, пропиливании или подрезке не повредить уплотнитель створки. Клапан врезается в верхней части рамы.
Как установить с фрезеровкой?
Для этой работы понадобится:
- электрическая дрель или шуруповёрт;
- свёрла диаметром 5 мм и 10 мм;
- электролобзик;
- напильник;
- карандаш или маркер;
- саморезы;
- силиконовый герметик.
Кроме того, облегчит работу шаблон для разметки отверстий. Изготовить его можно самостоятельно из ДВП, оргалита или тонкой фанеры.
Процесс установки по этапам:
- Разметка. При помощи шаблона отметить контур врезки прибора и точки для сверления отверстий.
- Фрезеровка. Высверлить ряд отверстий, которые затем при помощи лобзика объединить в паз. Края пластика загладить мелкозернистым напильником. Оконные камеры, открытые в результате резки, заполняются герметиком.
- Установка планки. Тыльную сторону монтажной планки обработать герметиком, аккуратно прижать к створке и закрепить саморезами.
- Монтаж клапана:
- Внутренний блок установить на планку и защёлкнуть крепежи.
- Впускную крышку закрепить саморезами с внешней стороны рамы.
- Завершение. Промазать герметиком стыки и швы. Навесить створку.
При работе в открытом проёме окна обязательно используйте страховку!
Видео об установке приточного клапана с применением фрезеровки:
Установка вентклапана без фрезеровки
Установка клапана без перфорации пластиковой рамы выполняется легче, не требует специальных навыков и не занимает много времени.
Вам понадобится:
- острый строительный нож;
- шуруповёрт;
- маркер;
- линейка.
Набор для установки устройства – длинный и короткие уплотнители, заглушки для фиксации, саморезы – поставляются в комплекте с прибором. Проверяйте при покупке!
- Необходимо выбрать место расположения клапана в верхней части створки, проследив при этом, чтобы короб устройства не перекрывал фурнитуру.
- Сделать разметку карандашом или маркером.
- Затем острым ножом аккуратно надрезать в отмеченных точках уплотнитель створки и вынуть его из паза.
- В открывшийся паз поместить крепёжные дюбеля – один в центр и два по краям. Сняв защитную плёнку с клеящейся полосы, прижать прибор к створке. При этом следует проследить, чтобы отверстия в корпусе приточника совпали с положением дюбелей. Прибор крепится саморезами, которые вкручиваются через отверстия в установленные в пазе дюбели.
- После этого следует закрыть паз маленькими уплотнителями из комплекта.
Возможно, понадобится также заменить на более тонкий уплотнитель рамы.
Видео об установке приточного клапана на пластиковое окно без фрезеровки:
Регулировка притока воздуха
Если клапан имеет ручное управление, после завершения монтажа нужно настроить положение задвижки, отрегулировав приток воздуха. Обычно в правом положении циркуляция максимальная, левое – это полное закрытие щели.
В случае когда клапан оснащён автоматическими системами регулировки, лучше не вмешиваться в этот процесс: можно повредить устройство и свести на нет полезные функции прибора.
Разновидности приточных клапанов
Приточные устройства на раму делят по следующим признакам:
- материал производства;
- метод регулировки потоков.
Материалом служит ПВХ, сталь, древесина. Чаще ставят пластиковые устройства, т. к. они дешевле при аналогичной функциональности. Стальные с обработкой от коррозии имеют повышенную прочность, их применяют в автоматических приборах.
Управляют клапаном вручную или с помощью автомата. Механический способ предполагает регулярное координирование силы потока опусканием или подниманием шторки. Для успешной работы требуется опыт регулирования, который получается с течением времени
Автоматические модели проще в обращении, не требуют регулярной настройки. Прибор сам откроет отверстие в нужной степени, когда в комнате повысится или снизится влажность.
Ручной
Механический вариант относится к бюджетной категории. Силу потока регулируют ручным способом. Для этого на корпусе есть соответствующий элемент. В устройстве нет приборов для замера качества микроклимата, поэтому регулировку проводят при снижении комфортности воздуха.
Особенности ручного клапана:
- на корпусе установлен движок или ручка;
- с его помощью изменяют позицию заглушки, соответственно, интенсивность потока;
- конструкция считается долговечной, благодаря простоте исполнения.
Некоторые модели предусматривают регулировочный шнур по типу жалюзи. Пользоваться регулятором приходится часто.
Автоматический
В устройствах есть внутренний датчик, который определяет ключевые параметры комнатного микроклимата: влажность, температуру. С этого прибора подается сигнал на рабочий механизм, регулирующий силу воздушного потока.
Координирование происходит по следующему принципу:
- центральное положение ручки означает подачу во всех направлениях;
- ручка опущена вниз — воздух идет вниз к полу;
- верхняя позиция перенаправляет поток вверх к потолку;
- в позиции «закрыто» наружный воздух в комнату не проникает.
Фальцевый
Воздушный поток в этом случае проходит длинный путь (от 1 до 2,5 м) от отверстий в прокладках притворного профиля по фальцам рамы. Еще отверстия вырезают в нижней части коробки или в месте пазов на створочном профиле. Проходя по фальцам, воздух греется, поэтому в комнату поступает чистый и не ледяной поток.
Особенности метода фальцевого микропроветривания:
- каналы не замерзают, т. к. подогретый воздух не допускает этого;
- уличные звуки рассеиваются, поэтому звукоизоляция не снижается.
При монтаже вырезают часть уплотнителя, привинчивают корпус устройства с заслонкой в форме лепестка. Регулируют действие вручную, или поток снижается при закрывании лепестка в сильный ветер.
Щелевой
Пропускной канал выполнен в форме сквозной щели протяженностью 17 – 40 см и высотой 1,2 – 1,6 мм. Продолговатое отверстие выполняют в импосте, установленном горизонтально, или в верхней части створки. Снаружи отверстия ставят защиту от дождя, пыли, насекомых, а внутри монтируют регулятор. Устройство подает каждый час по 25 – 35 м³ воздуха — объем соответствует нормативам.
Особенности щелевого проветривания:
- простой монтаж занимает не больше получаса;
- можно устанавливать в заводских условиях и дома на раму;
- для предохранения от загрязнения ставят дефлекторы, решетки, фильтрующие прокладки.
Ручка с клапаном
Конструкцию применяют вместо стандартной ручки, при этом фурнитура совмещается с любыми элементами открывающего механизма. Внешняя форма не отличается от обычной ручки, но внутри располагается фильтр для грубой очистки воздуха.
Особенности работы:
- не зависимы от электричества, поэтому работают в любых условиях:
- замена происходит просто, работу может выполнить человек без опыта;
- внутри рамы ставят воздухоносные трубки, поэтому уличные потоки не реагируют напрямую с профилем.
Накладной
В этом варианте предусмотрен канал большой площади (около 200 см²), который располагают по длине профильного участка. Чтобы не ослаблять конструкцию, такие устройства изготавливают накладными.
Их устанавливают двумя методами:
- в промежутке между проемом и коробкой;
- между участком створки и краем стеклопакета.
Системы отличаются повышенной способностью пропускать наружный воздух (до 150 м³/ч). Сложность возникает в установке защиты от пыли, шума, потерь тепла. Для регулировки подачи есть фильтры и заглушки, координируемые ручным методом.
Как производят замеры
Большинство квартир имеют проёмы без четверти. Под понятием «четверть» предусматривается внутренняя рамка. Ее ширина — 6 см. Другими словами — четверть кирпича, потому так и называется. Ее предназначение:
- воспрепятствовать выпадению окна;
- укрепить всю конструкцию.
Верные замеры окна обеспечивают правильный монтаж окна
Допустим, четверть отсутствует. Тогда рама устанавливается на анкеры. Дальше потребуется закрыть пену нащельниками.
Можно выявить, есть ли четверть, простым способом. Достаточно определить визуально, разнятся ли наружная и внутренняя ширина рамы. Если они разные, то четверть предусмотрена изначально.
Первое действие. Определяют ширину проёма, то есть дистанцию между откосами. Для уточнения результата штукатурку удаляют.
Второе действие. Измеряют высоту. Это размер от подоконника до откоса сверху.
Чтобы точно определить ширину окна, берут ширину проёма и из этого показателя вычитают величину монтажного зазора в двойном размере. А высоту определяют таким способом: берут высоту проёма и от нее отнимают два монтажных зазора, а еще, с целью получения окончательного результата, вычитают высоту профиля для подставки.
Как сделать замеры пластикового окна
Дальше сверяют, насколько проём симметричен, прямолинеен. С определением помогут:
- отвес;
- уровень.
Любая из неровностей и дефектов непременно должна быть отражена в чертеже.
Определение ширины водоотлива
Для этого следует взять показатель имеющегося отлива и прибавить 5 см, этот добавок предназначен для загиба. К тому же приходится учитывать ширину:
- утеплителя;
- последующей облицовки, если фасад будет впоследствии специально облицовываться.
Особенности вентиляции в квартире
Большая часть жилых городских зданий относится к экономичному жилью, а это значит, что при строительстве высоток используется схема естественной вентиляции. Она заключается в свободной циркуляции воздушной среды внутри комнат, которая осуществляется благодаря разнице температур на улице и в здании.
Путь воздуха в типовой трехкомнатной квартире
Свежий воздух поступает через оконные зазоры, форточки, открытые створки окон, а также небольшие щели под дверными полотнами, специально предусмотренные для этой цели. Отработанная среда выводится через технические отверстия, расположенные в санузлах и на кухнях, в общедомовые вентканалы и шахты.
Если произойдет нарушение схемы притока и вытяжки, микроклимат в квартирах нарушится, что незамедлительно отразится на самочувствии жильцов. Духота, повышенная влажность и частички пыли провоцируют возникновение заболеваний у людей, а также появление плесени.
Чтобы наладить движение воздуха, используют различные устройства, например, сплит-системы или обычные вентиляторы, вставленные в вентиляционные каналы.
Канальную вентиляцию устанавливают в домах элитной категории
В квартирах с герметичными стеклопакетами существуют более простые решения, например, установка приточного клапана на деревянное или пластиковое окно. Компактный прибор подает воздух в постоянном или циклическом режиме, выбор которого зависит от необходимых для комфортного проживания параметров температуры и влажности.
Рейтинг качественных моделей с автоматической регуляцией клапана
Ventec VT 101
Хорошая модель с возможностью автоматического контроля поступающего воздуха. Установка занимает минимум времени и не требует особых знаний. Продукт обеспечивает не только вентиляцию помещения, но и предоставляет хорошую шумоизоляцию равной 32 Дб. Производительность конструкции – 32 м3 в час. Козырек оснащается специальным фильтром, который не пропускает пыль и насекомых.
Ventec VT 101
Достоинства:
- Шумоизоляция;
- Производительность;
- Большой выбор цвета;
- Автоматическая регуляция;
- Цена.
class=’s-article__points-list’>
Недостатки:
class=’s-article__points-list’>
AerEco ЕММ
Особенность этого устройства заключается в автоматической адаптации к потребностям пользователей. Такое решение стало доступно благодаря встроенному датчику, который функционирует без электричества и определяет какой объем воздуха нужен для конкретной ситуации. Это полезная функция для больших семей, когда все находятся в квартире, шторка открывается на максимум, а когда никого нет, продукция работает в экономном режиме.
Средняя цена – 4 900 рублей.
AerEco ЕММ
Достоинства:
- Эффективность;
- Автоматическая адаптация;
- Звукоизоляция равна 37 Дб;
- Производительность до 35 м3 в час.
class=’s-article__points-list’>
Недостатки:
class=’s-article__points-list’>
Brookvent AQUVENT HY
Модель оснащена гигрорегулируемой системой, которая автоматически определяет объем и расход воздуха. Также при помощи специального датчика контролируется уровень влажности. Изделие подстраивается под нужды пользователя. Чтобы монтаж не занимал времени и не затрачивал сил, производитель оснастил прибор тонким корпусом. Следить за конструкцией легко, достаточно очищать фильтр от пыли один раз в год. Особенность этого варианта – универсальность, он подойдет не только для ПВХ, но деревянных и алюминиевых рам.
Средняя цена – 2 800 рублей.
Brookvent AQUVENT HY
Достоинства:
- Простое техническое обслуживание;
- Тонкий корпус;
- Эффективность;
- Гигрорегулируемая система;
- 3 режим работы;
- Наклонный воздушный поток.
class=’s-article__points-list’>
Недостатки:
class=’s-article__points-list’>
Что собой представляют Аэрбокс?

Устройства Аэрбокс предназначены для поддержания естественной воздушной аэрации в помещении, которая нарушается при полном закрытии оконных створок. Работа их протекает в автоматическом режиме при полностью закрытом окне, за счет воздушных заслонок подвижного типа.
В современных вариантах клапанов Air Box при усилении ветра они самостоятельно прикрываются, сокращая объем поступающего воздуха в помещение.
Автоматическая работа заслонок позволяет регулировать процентное содержание влажности в воздухе, тем самым снижая вероятность возникновения условий для образования конденсата, способствующего биологическому загрязнению.
Принцип функционирования клапана Air Box:
- На створке и раме окна монтируют корпус AirBox, для этого снимается часть заводского оконного уплотнителя.
- Через сформировавшееся отверстие в оконной системе в комнату поступает уличный воздух.
- Процесс регулирования воздухоподачи происходит благодаря регулировочной ручке устройства, перемещая ее в положение вправо/влево, в некоторых версиях она поворотного типа.
- Благодаря естественному перепаду давления в воздушной среде и в помещении, примерно в 10 Па, воздух из внешней среды будет поступать во внутреннюю.
- Заслонки сконструированы таким образом, что более холодный уличный воздух направляется вверх, нагревается там от более теплого воздуха и равномерно распределяется по всему помещению, в результате чего в него не поступают сквозняки и общая температура воздуха не падает.
Поскольку эффективность работы AirBox зависит от разницы давлений, которая определяется снаружи и внутри помещения и имеет максимальное значение в осенне-зимний период года, то именно в это время тяга имеет самую большую разницу.
Помимо климатического сезона, тяга зависит от множества внешних причин: месторасположения окна по сторонам света, высоты дома, розы ветров и климатических характеристик местности.
Выполняя наладку приточного клапана AirBox, специалисты не советуют полностью прикрывать клапан.
Для каких типов окон они подходят?

Клапаны Аэрбокс приточного типа являются универсальными по варианту установки, могут применяться для всех типов современных оконных систем: пластиковых, деревянных и алюминиевых. Этот принцип заложен в конструкцию вентиляционного клапана. Он устанавливается на раму и створку из любого материала и не портит его внешний вид.
При самой простой схеме монтажа Air Box без фрезеровки корпус не затрагивается, потребуется только удалить часть штатного оконного уплотнителя на створке и раме и установить более тонкое изделие. В этом же месте, с новым уплотнителем устанавливают и корпус приточного клапана.
В наибольшей степени установка таких вентиляционных устройств необходима для зданий, возведенных из монолитного железобетона, а также в частных домах, у которых слабая естественная вентиляция. Поскольку на таких объектах потребуется чаще открывать форточки и створки окон, что приводит к увеличению теплопотерь и росту затрат на нагрев помещения. Кроме того во время открытия окон, они становятся источниками повышенного уличного шума.





































