Виды гидроизоляции
При условии, что отмостка изготовлена с уклоном по всему периметру постройки, водоизоляционный выкладывают с запасом, при этом каждый следующий отрезок перекрывает предшествующий.
При расчетах выступов следует учитывать технологию: каждый слой перекрывает предшествующий на расстояние равное четырехкратному отступу меж отрезками по их высоте.
Ежели речь идет о постройке с подвальной частью, то функцию необходимо проделывать на 2-ух высотах: 1-ая высота находится вровень с полом подвала, а 2-ая отметка напротив цоколя дома, незначительно выше отмостки.
Цементная стяжка
Иногда прибегают к способу гидроизоляции средством цементной стяжки, естественно исходя из погодных зон региона (учитывается степень воды в грунте, близость грунтовых вод к постройке и так далее). Часто в выборе консистенции для стяжки отдают преимущество портландцементу, который разбавляют добавками уплотнительного нрава (например, алюминат натрия). Слой такового бетона должен быть 20-25 миллиметров.
Рубероид
Заменой бетона может служить рубероид либо толь, их необходимо укладывать в два слоя, склеив меж собой какой-нибудь мастикой.
Еще время от времени прибегают к асфальтовой защите отмостки, тогда его слой должен насчитывать до 30 мм в толщину. При этом его укладка делается на уровне фундамента либо стен подвального помещения.
Битумные мастики
Гидроизоляция средством окрашивания отмостки осуществляется в основном при помощи битумных мастик.

Наносят их при помощи щетки на приготовленную поверхность (стенка подвала обязана быть сухая и предварительно прогрунтована, а ежели имеются огромные изъяны, в виде грубых неровностей (чаще всего это относится к бутовым кладкам и стенам), то их сглаживают раствором.
Обработка обязана проходить в виде нанесения слоев мастики шириной не больше 2-3 мм. Весь процесс необходимо разбить на этапы, давая каждому слою просохнуть и образовать доброкачественную поверхность. Итог проведенных работ — монолитная, цельная мастичная поверхность без трещин какого или характера.
Хуже, ежели имеются вздувшиеся участки, образовавшиеся из-за плохо приготовленной либо увлажненной обрабатываемой поверхности.
В хоть каком случае покоробленные места очищаются от защитного слоя, высушиваются, и вновь покрываются мастикой таковой же толщины с таковыми же интервалами по времени.
Когда же мы берем рубероид либо толь, как для оклеивания гидроизоляции отмостки при горизонтальной ориентации можно пользоваться всё той же мастикой на базе битума. Когда наклон обрабатываемой горизонтальной поверхности имеет до 20 5 градусов, рулонные клеят определенным типом — частями, которые в высоту будут в районе 1,2-1,5 метра при их обычной ширине.
Размеры отмосток по СНиП
Основной параметр – это ширина отмостки. В своде норм и правил указывается, что этот размерный показатель зависит от нескольких факторов, а именно от:
- типа грунта на загородном участке;
- степени просадки почвы;
- ширины выступа карнизного свеса крыши;
- архитектурных особенностей здания.
Что касается зависимости от типа грунта, то здесь необходимо обозначить два вида почвы.
- Это грунты, устойчивые к деформационным нагрузкам. Здесь имеются в виду нагрузки от собственной массы. Степень просадки таких почв не превышает 50 мм.
- Грунты, которые восприимчивы к нагрузкам. Их степень просадки больше 50 мм.
Так вот если на загородном участке расположены грунты первой категории, то ширина отмостки должна быть в пределах 150 см. Если второй категории, то 200 см.
Определить тип грунта можно, передав почву на анализ. Или другой вариант – обратиться в геодезическую службу района.

Минимальная ширина отмостки по СНиП Источник ok.ru
Но есть в СНиПе так называемый минимальный параметр ширины. Он определен диапазоном 80-100 см
При этом важно учитывать ширину свеса крыши дома. То есть первый параметр должен быть больше второго на 20-30 см
Получается так, что стекающая с крыши вода должна попадать на отмостку и по ней удаляться подальше от фундамента здания.
Но при этом в СНиПе указывается о пропорциях отмостки и здания, а также зданиях соседних. Необходимо строго следить за этими пропорциями, потому, к примеру, узкая дорожка вокруг дома может не вписаться в общий экстерьер участка в целом.

Узкая отмостка смотрится некрасиво Источник pinterest.com
Угол наклона отмостки
Переходим к не менее важному параметру – уклону отмостки. Именно от него зависит, как дождевая и такая вода будут отводиться от здания
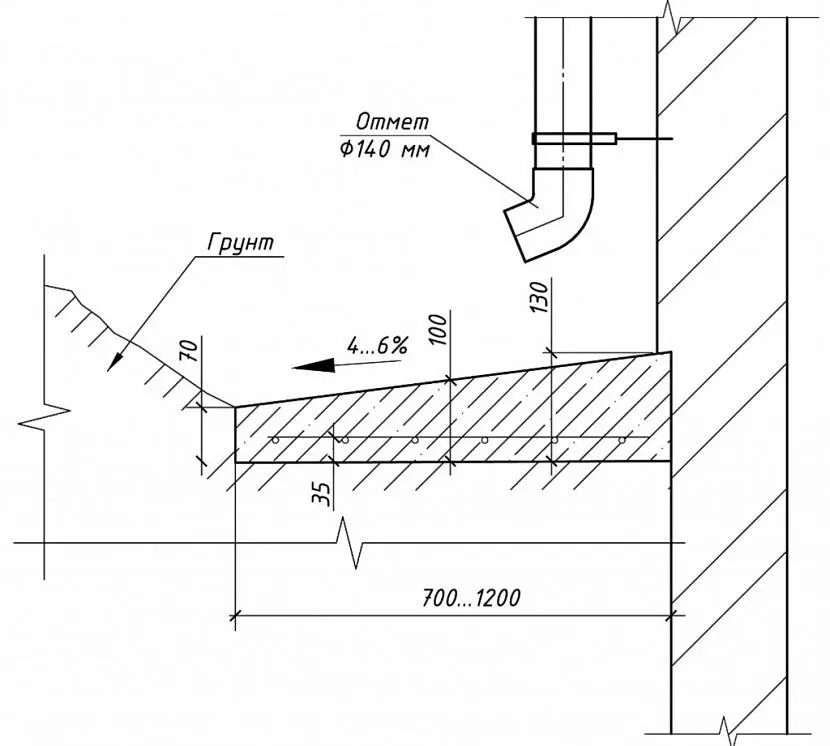
В СНиПе четко обозначено, что минимальный угол наклона должен варьироваться в пределах от 2° до 3°. В своде также обозначен и другой показатель, связанный с уклоном. Это толщина сооружения около фундамента. Она должна быть равна 10-15 см. А толщина внешнего края – 5-10 см.

Оптимальный угол наклона отмостки Источник cokr54.ru
Но с толщиной отмостки не все так просто, поэтому разберем и этот размер.
Требования к толщине
В основу этого габаритного размера вкладывается марка бетона, используемого для заливки основы под облицовку. Чем она больше, тем меньше толщина. Но необходимо понимать, что бетонный слой – не единственный в конструкции отмостки. Здесь надо будет учитывать дополнительно песчано-гравийную подушку. А она обычно засыпается толщиною 5-15 см в зависимости от типа почвы на загородном участке. Чем мягче грунт, тем толще подушка.

Толщина окантовки зависит от толщины укладываемых слоев Источник pobudova.in.ua
Дорожка вокруг здания из тротуарной плитки
Отмостка из плитки вокруг дома своими руками – это один из популярных вариантов обустроить пространство на усадьбе или даче. Кроме декоративности, бетонная брусчатка или тротуарная плитка устойчивы к морозу, смене температур, поэтому надёжно защищают и цоколь, и основание дома.

Формы, размеры, цвета брусчатки – сегодня в продаже их огромное разнообразие.
Процесс укладки:
- До начала работ с плиткой или брусчаткой нужно закончить все рабочие этапы, которые могут повредить укладку;
- По углам строения вбиваются колья, на них отмечается высота соприкосновения конструкции к цоколю. Бечёвкой по всему периметру дома закрепляют отмеченную высоту. По наружной стороне размещают 2-ую линию кольев с отметками высоты будущей бетонной заливки;
- Для отвода воды намечают уклон. От цокольной части поперечный уклон на каждый метр – 5 см. Определяются с шириной будущей дорожки;
- Удаляются любые растения вместе с корнями, снимается дёрн на 15 см вглубь;
- Выкапывают по бечёвке траншею. После выборки грунта дно тщательно уплотняют;
- Как делать отмостку вокруг дома своими руками под плитку или брусчатку? На подготовленную основу засыпают слой щебня (не менее 15 см у цокольной части и 10 см у наружного края полосы). Уклон при разравнивании делают не более 5 %;
- На слой щебня выкладывают сухой состав из смешанного песка и цемента. Высота подушки до 3-4 см. Плотное прилегание брусчатки к основе получится при осадке, когда она будет уложена и погружена в монтажную прослойку из сухого песчано-цементного раствора;
- Монтаж тротуарных плиток выполняют от любой условной линии. Например, от края цоколя. Выкладку проводят в обе стороны либо только от условной линии в одном направлении. Выравнивают грани брусчатки по натянутой верёвке, которую располагают вдоль укладываемого рядка. Монтаж плитных элементов проводится поперечными рядками с одной стороны до другой навстречу уклону;
- Чтобы обеспечить ровное покрытие и уклон при выкладке плит, нужно при устройстве конструкции:
- делать верстовой рядок вдоль либо поперёк цокольной части;
- начинать укладывать брусчатку от краёв дорожки и далее к цоколю;
- уложенные тротуарные элементы выравнивать постукиванием резиновой киянкой по тонкой дощечке, которую кладут на плитку.

Выравнивание уложенной брусчатки при простой отмостке вокруг дома своими руками осуществляют постукиванием киянкой по дощечке.
Для чего нужна отмостка?
В общем случае, отмостка представляет собой водонепроницаемое покрытие в виде дорожки, которая прокладывается вокруг дома и примыкает к его стенам. При дожде и таянии снега вода капает с крыши, стекает по стене, проникает по поверхности грунта и накапливается непосредственно возле фундамента и цоколя.
Воздействие влаги на бетон приводит к растрескиванию и постепенному разрушению материала. С помощью отмостки обеспечивается отведение осадочных вод от стен дома на безопасное расстояние, где вода свободно уходит в землю, не контактируя с элементами конструкции здания. Если она сочетается с дренажной системой, то обеспечивается полноценная защита сооружения.
Помимо основного назначения отмостка способна выполнять дополнительные функции:
- обеспечивает утепление прилегающей к дому почвы, защищая его от промерзания зимой. Это помогает снизить затраты на отопление цокольных помещений;
- исполняет роль пешеходной дорожки по всему периметру дома, а значит не надо прокладывать дополнительных тротуаров;
- наконец, она выполняет и декорирующую роль, придавая законченный вид всему сооружению.
Что представляет собой утепленная отмостка вокруг дома
Любой из перечисленных видов отмостки можно дополнить утепляющим слоем. Для чего это нужно? В местах, где низкие температуры держатся очень долго, это просто необходимо. Промерзающий грунт, содержащий много влаги, способен сломать даже прочный бетон.
Чем лучше вы утеплите этот защитный козырек, тем дольше простоит весь дом
Как правильно подобрать утеплитель для этой цели? Есть несколько материалов, которые можно использовать:
- керамзит – влагоустойчивый, прочный и пожаробезопасный, он отлично утеплит фундамент снаружи. Его можно добавить прямо в бетон во время заливки;
- пенополистирол и пенополиуретан – эти материалы имеют отличные теплоизоляционные характеристики и могут применяться не только для утепления стен и кровли, но и фундамента. Стоит такая обработка немало, и сверху обязательно нужно залить бетонную отмостку;
- пеноплекс – не лучший выбор для отмостки, так как он слишком хрупкий.
Для мягкой отмостки слой утеплителя можно поместить между двумя слоями мембраны.
Скрытая отмостка вокруг дома
Скрытая отмостка
Идея разбивать газоны прямо у стены постройки пришла к нам из Западной Европы. Поэтому можно воспользоваться опытом зарубежных мастеров по ландшафтному дизайну и скрыть гидроизоляционную защиту простым способом.
После того как убирается верхний плодородный слой почвы по задуманным размерам, пространство засыпают песком (10–15 см), и накрывают мембраной (шипами вниз). Затем полотно снова укрывают песком и щебнем.
Финишным слоем может стать земля, где сеются растения или разноцветная мраморная крошка. Идеи декорирования зависят от фантазии хозяина участка.
Идеи декора можно почерпнуть в интернете на форумах ландшафтного дизайна.
Возможные ошибки при монтаже
Мягкая отмостка – это хорошая альтернатива бетонной дорожке, стоимость которой в разы выше. При правильном монтаже и уходе она прослужит долгие годы.
Во время строительства конструкции следует избегать возможных ошибок:
- Неправильно подобраны размеры и расположение траншеи. Отмостка должна располагаться вокруг всего здания, и быть на 20-30 см шире кровельного навеса. Если в постройке имеется крыльцо с крышей, то отмостка в этом месте должна быть шире, чтобы исключить попадание влаги в зону фундамента.
- Застой воды. Несоблюдение техники монтажа может привести к тому, что вода возле фундамента будет заставиться, в результате чего образуются лужи. Поэтому, не стоит забывать о сооружении поперечного склона и дренажных лотков, которые выведут воду из зоны конструкции.
- Отсутствие утепления, особенно, на пучинистых грунтах. Дело в том, что продолжительные морозы и оттепель приводят к перенасыщению почвы водой и ее вспучивание. Это приводит к тому, что нагрузка на элементы постройки становится неравномерной, из-за чего на фундаменте появляются трещины, и он разрушается.
- Отсутствие гидроизоляции мягкой отмостки. На верхний слой такой конструкции обычно насыпается гравий, укладывается плитка или высаживается газон. Они легко пропускают воду, поэтому нуждаются в качественной гидроизоляции. Она создаст герметичный слой и не даст атмосферным осадкам разрушить фундамент. Гидроизоляция должна укладываться с напуском на фундамент постройки.
Ремонт бетонной отмостки
Если на отмостке появились следы растрескиваний, отслоений или других деформационных процессов, необходимо быстро начать ремонт и избавиться от образовавшихся дефектов. Если они достаточно сильные и глубокие, понадобится выполнить полную замену покрытия.
Для устранения небольших зазоров от температурных воздействий достаточно применить герметики и порозаполнители. Широкое отверстие заполняется песком и цементом с мелким щебнем, чтобы обеспечить оптимальную изоляцию.

Сухое покрытие обрабатывается грунтовкой. Такие же действия выполняются с трещинами поверхности секций.
Наличие бетонной полосы по периметру дома — это гарантия надежности и долговечности основания дома
Но, чтобы конструкция была максимально прочной и функциональной, важно соблюдать правила ее возведения и в точности следовать инструкции. Также важно грамотно рассчитать толщину отмостки из бетона, нанести все требуемые разметки и быть внимательным на каждом из этапов строительства
Как сделать отмостку своими руками?
Наиболее часто при возведении частных домов обустраивается отмостка жесткого типа с заливкой бетона. Порядок действий описан ниже.
Пошаговая инструкция
Итак, этапы работ:
1. Подготовительные мероприятия. На данном этапе выбирается схема отмостки, ее размеры и технологические приемы. Место для ее обустройства очищается от строительного мусора и разравнивается. Выкорчевываются корни крупных растений.
2. Разметка отмостки. Ориентир выставляется по наиболее выступающему краю кровли. От него опускается перпендикуляр на поверхность земли и отступается порядка 20 см. Чаще, применяется более простая методика.
С помощью рулетки отмеряется 1 м от стены дома и по его углам забиваются колья. При изготовлении отмостки вокруг большого дома разметку кольями осуществляют через каждые 2,5–3 м. Между ними натягивается разметочный шнур, указывающий границы верхнего покрытия.
3. Земляные работы. Для монтажа отмостки вокруг дома вручную, с помощью лопат необходимо вырыть траншеи на глубину от 15 до 30 см по всему периметру дома. Глубина должна соответствовать проекту. Границы траншеи ориентируются на разметку. Для формирования демпферного зазора на стенку здания накладывается пенополиуретановая пленка. Дно траншеи тщательно утрамбовывается и формируется уклон от стены дома.
4. Укладка подложки. Она формируется в виде сложной, слоеной конструкции. Поочередно укладывается геотекстиль, гидроизоляция, слой песка толщиной 10–15 см, слой щебня такой же толщиной и второй слой гидроизоляции.
Песок для хорошего уплотнения при укладке проливается водой. При создании щебневого слоя соблюдается определенная очередь: вначале засыпаются крупные фракции, а сверху щебень с элементами менее 5 мм.
5. Монтаж основания жесткого покрытия. Для начала, необходимо установить опалубку, которая поможет приподнять уровень отмостки над землей. Опалубка из деревянных досок устанавливается по нижней границе бетонного покрытия. Ее надо привести в соответствие с разметкой.
Сверху подложки монтируется теплоизоляция (если она предусмотрена проектом). Для этого укладывается лента из экструдированного пенополистирола толщиной до 50 мм. Далее, наступает очередь арматуры. В качестве армировки, как правило, используются стальные прутки диаметром 6–8 мм. Они укладываются в виде сетки с ячейкой размером 15×15 см.
6. Заливка бетона. Для того чтобы правильно залить жесткое покрытие необходимо приготовить бетонный раствор оптимальной консистенции. Он не должен быть слишком жидким и позволять сформировать нужный уклон с помощью стандартного ручного инструмента.
Замесить раствор можно вручную или в бетономешалке. Заливается он внутрь опалубки с уплотнением и разравниванием поверхности. Как залить отмостку, показано на фото.
После завершения заливки необходимо обеспечить постепенное застывание бетона. Для этого отмостка укрывается полиэтиленовой пленкой. В течение 2–3 суток осуществляется периодическое увлажнение бетонной поверхности. Полное застывание материала происходит в течение 3-4 недель, когда бетон наберет максимальную прочность.
Видео
Процесс изготовления отмостки вокруг дома можно увидеть на видео.
Отмостка играет важную роль в защите фундамента и цокольной части дома от осадочной влаги. Выбор ее конструкции зависит от размеров сооружения, климатических особенностей, состава грунта, механических нагрузок и финансовых возможностей. Обустроить отмостку можно своими руками, но для этого следует соблюдать существующие строительные нормы и правила.
Оптимальные размеры

Требования к размерам следующие:
- Высота. Лента должна находиться не на одном уровне с грунтом, а быть выше него минимум на 5 см. Если это пешеходная тропинка, то высота делается больше за счет увеличения слоя песчаной подушки.
- Ширина. Для песчаных грунтов — 70 см, для глинистых — 1 м. Для более рыхлых (просадочных) – 1,5-2 м.
- Толщина. Самая оптимальная толщина — 7 см. Имеется в виду толщина бетонной части. При этом подушка из утрамбованного грунта должна быть от 15 см. Общая глубина не должна превышать 20 см.
- Угол наклона. Согласно СНиП III-10-75 полоса должна вплотную идти к цоколю под углом. Точный показатель находится в пределах 1-10% в противоположную сторону от несущей стены. Для пучинистого рыхлого грунта -3%. Упростит расчеты строительный онлайн-калькулятор.
Устройство отмостки
Важно вовремя укладывать отмостку. Оптимальный период – после отделки стен снаружи дома, но до начала облицовки цоколя
В этом случае дождь не будет попадать внутрь фундамента.
У отмостки два слоя: подстилающий и защитный.

Средняя толщина подстилающего слоя не превышает 20 см. Из материалов применяют:
- песок;
- щебень, гравий;
- родную почву;
- глину.
На земле с хорошим дренажом сначала укладывают слой песка, трамбуют, увлажняют водой. Потом идет слой щебня с последующей трамбовкой.
На суглинистой, глинистой почве в качестве подстилающего слоя лучше применять этот же грунт. Если просто уложить сверху песок со щебнем, то вокруг постройки начнет скапливаться вода. Решит проблему установка по периметру отмостки дренажной трубы. Но стоимость работ будет выше.
К защитному слою предъявляется ряд требований. Он должен:
- Быть водонепроницаем.
- Обладать устойчивостью к морозу.
- Быть износостойким.
- Не разрушаться под действием воды и влаги.
Для этого отлично подойдут:
- природный, искусственный камень;
- брусчатка;
- тротуарная плитка.
Расцветка, форма подбираются исходя из стиля оформления рядом стоящих построек для создания гармоничного архитектурного ансамбля.

Выкладывать самостоятельно отмостку частного дома стоит с учетом таких нюансов:
- Средний уклон от здания 3 см на 1 метр.
- Обязательно наличие компенсационного шва в 1-2 см между защитным слоем и фундаментом. Укладывается слой гидроизоляции, утеплитель, швы проходят герметиком.
- Цоколь должен делаться нависающим над компенсационным швом, но не быть на стыке с защитным слоем.
Несколько видов отмосток
Сегодня можно выделить несколько видов несложной отмостки. Благодаря своей простоте и эстетичному внешнему виду они достаточно широко популярны среди владельцев частных домов.

Схема устройства отмостки из щебня
- Брусчатка из бетона. Это довольно распространенный материал. Он встречается в различных цветовых вариантах: от черного до оранжевого и даже желтого. Различна и форма данного материала: можно выбрать прямоугольник, квадрат, шестигранник, волну и другие.
- Брусчатка из камня. Отличительная черта такого материала — натуральность, поэтому этот вид не имеет такого разнообразия цвета и форм. Укладывается каменная брусчатка на щебень или песок, слой которого 3-5 см.
- Брусчатка из бетона — наиболее простой и относительно дешевый вариант. Можно сделать декор из камней, он не будет лишним, а даже внесет некоторое разнообразие. Для декора можно использовать гальку или другой подобный материал.
- Брусчатка из тротуарной плитки. Этот вариант хорош тем, что плитку можно заменить, не прилагая больших усилий.
- Брусчатка из щебня — ее легче всего сделать своими руками. Основной материал — щебень. Его можно заменить на гравий, керамзит или же гальку.
Какой вид выбрать для своего участка, решать вам, однако необходимо помнить, что очень важным моментом является правильное устройство отмостки, иначе она не будет выполнять своих прямых обязанностей.
Это интересно: Постройка гаража из керамзитобетонных блоков: изучаем детально
Как устроена отмостка
Основой отмостки является подстилающий слой, поверх которого наносится покрывающий слой. Нередко для их создания используются разные материалы. Для обеспечения водоотведения от стен строения поверхность отмостки должна иметь небольшой уклон.
Покрывающий слой часто делают из бетона. В этом случае поверхность базового слоя должна быть горизонтальной, уклон же поверхности покрывающего слоя создается тогда, когда заливается бетон. Стандартная величина уклона составляет пять сантиметров на один метр.
Подстилающий слой чаще всего делают из глины, щебня либо гравия. Наиболее практичным материалом является мятая глина благодаря тому, что она плохо пропускает воду. Обычно подстилающий слой делают толщиной от до 0.3 метра. При использовании глины достаточной толщиной для подстилающего слоя будет от до 0.2 метра.
Если при создании подстилающего слоя используется щебень либо гравий, то между ним и покрывающим слоем должен пролегать слой песка толщиной от до 0.1 метра.
Покрывающий слой делают из прочного и водонепроницаемого материала – натурального камня, асфальта, бетона. В некоторых случаях для этого применяется кирпич, либо плитка для тротуаров.
Подготовка к работе
Первым шагом при подготовке является установление главных параметров будущей конструкции. Стандартная минимальная ширина отмостки составляет 0.6 метра. Однако при ее проектировании необходимо учитывать следующие факторы, в том числе относящиеся к особенностям архитектуры и дизайна строения:
- Положение грани карниза крыши дома: край отмостки должен выступать за эту грань не менее чем на метра. Это предотвратит сток воды с крыши на грунт при отсутствии водостока или проблемах с ним.
- Сочетаемость отмостки с общим дизайном строения и окружающим ландшафтом.
- Особенности грунта вокруг здания. Так, если дом окружает просадочный грунт, то минимальная рекомендуемая ширина отмостки составляет один метр. Такой размер обеспечивает удобство применения отмостки в качестве дорожки.
- Особенности климата местности, в которой расположен дом.
- Материалы, которые предполагается использовать для строительства отмостки. Так, если делать покрывающий слой из тротуарной плитки, то уклон можно сделать меньшим, чем в случае использования щебня.
После установления приемлемого в данной ситуации значения ширины отмостки необходимо определить угол ее наклона. Для обеспечения эффективного водоотведения величина этого угла должна лежать в пределах между двумя и пятью градусами.
Материалы и инструменты
Наиболее распространенным материалом для покрывающего слоя является бетон. Если предполагается использовать в строительстве отмостки именно его, то понадобятся следующие инструменты и дополнительные материалы:
Общее понятие отмостки и основные ее характеристики
Отмостка – это защитная, водостойкая полоса, которая расположена горизонтально по периметру всего здания. Для более детального изучения ее внешнего вида можно посмотреть на сайте «отмостка фото». Идеальная ее ширина приблизительно 1-2 метра и вплотную примыкает к стенам фундамента или цоколя дома.
Отмостка защищает дом от подземных, грунтовых, ливневых и талых вод. Для ее укладки используются различные материалы: отмостка из щебня, из бетона и др. Иногда она может нести и декоративную функцию, а также является пешеходной дорожкой.
Конструкция отмостки состоит из двух слоев: подстилающий слой и покрытие. В качестве подстилающего слоя применяют песок, глину или щебень, а покрытие делают из водонепроницаемого материала (бетон, асфальт, тротуарные плиты и др.)
Какие материалы применяются при армировании
Сетка для отмостки представлена на рынке в различных вариантах. Она отличается по конструкции. Размер ячеек зависит от выбранного типа. Эти нюансы влияют на качественные характеристики материала.
Стандартная
Стандартная сетка со средним размером ячеек применяется не только для фундамента. Отмостка, армированная таким материалом отличается хорошей прочностью, надежностью и долговечностью. Стержни переплетаются под прямым углом. Размер ячеек составляет 6-7 см.
Рекомендуем: 5 главных вещей при выборе участка под строительство дома
Геотекстильная
Инновационный материал, получивший распространение в последние годы, – геотекстильная сетка. Стоимость этого варианта немалая, поэтому его рационально использовать только при наличии определенных условий, к примеру при проведении работ в сейсмически опасных зонах, а также при обустройстве конструкций на рыхлом грунте.
Металлическая
Металлическая сетка превосходит предыдущие по прочностным характеристикам и эксплуатационным качествам. Распространенное использование арматуры из металла обусловлена рядом преимуществ:
- устойчивость к воздействию окружающей среды;
- неподверженность коррозии;
- противостояние химическому влиянию;
- простота эксплуатации и хранения;
- длительный срок службы.
Прочность и надежность материала обусловлена использованием качественного металла, который подвергается цинкованию для улучшения эксплуатационных параметров.
Классическая
Классический вариант отличается легкостью, что уменьшает нагрузку на основание. Сетка имеет вид перпендикулярно сваренной проволоки. Такой материал универсален, может применяться при укладке конструкций из кирпича и при заливке бетонной стяжки.
Разновидности
Итоговый вид у всех окантовок будет примерно схожим. Различают 2 вида отмосток: мягкие и твердые. Оба типа изоляции для здания делают из плотных, водонепроницаемых материалов. Для мягких конструкций нужна насыпь, которая позже плотно утрамбовывается. Между нижним и верхним слоем делается изоляция из глины. Она не пропускает влагу, но не слишком твердая. Такая изоляция фундамента позволяет грунту немного сужаться и расширяться под воздействием влаги.
Для нижнего слоя используют рассыпчатые материалы. Самый твердый из них — песок. При попадании влаги они спрессовывается и уплотняется. Если нужен более подвижный вариант, используют гравий. Верхний настил выкладывают из брусчатки, плитки или закрывают газоном. Преимущества мягкого отмостка:
- он не может потрескаться;
- не требует ремонта;
- устойчив к изменениям температуры;
- меняет свое положение вместе с грунтом, не деформируясь;
- не повреждается корнями растений;
- позволяет выбрать практически любой материал для верхнего покрытия;
- легок в сборке;
- допускает укладку утеплителя для снижения уровня промерзания грунта.
Жесткую отмостку делают монолитной. Не должно быть стыков, зазоров и трещин. Для нижнего слоя используют бетон или газон. В первом случае нужно добавить в смесь пластификатор для снижения пористости материала. Для основания всегда делается насыпь из песка и гравия. Такой вид покрытия дороже, чем мягкая окантовка здания, однако именно ее используют чаще. Главный недостаток такой конструкции — длительный срок затвердевания. Минимум сутки по свежему асфальту и бетону ходить нельзя.
Внимание!На мягкой отмостке можно сделать цветник или покрыть его дерном.
Размеры слоя
Если сложить все слои отмостки по нормативной толщине, то можно получить результат 250 мм при глубине выемки 150 мм и 300 мм при глубине — 200 мм. Несложные математические расчеты показывают, что такая бетонная конструкция поднимается над уровнем земли на 100 мм.
Базовые нормативные акты, регулирующие изготовление отмостки жилого дома:
| СНИП | СП | ГОСТ | Дата ввода в действие | Области нормирования |
| 2.02.01-83 | 2001 | Основания жилых объектов | ||
| 2.02.01-83 | 22.13330.2011 | 1983, 2011 | Главные требования к отмосткам | |
| III-10-1975 | 82.13330 | 1975, 2011 | Благоустройство территорий | |
| 7473-94 | 1994 | Смеси бетонные | ||
| 3.04.01-87 | 71.13330 | 1987, 2017 | Изоляционные и отделочные работы |
Вышеперечисленными актами руководствуются, чтобы выполнить общие расчеты и учесть свойства грунтов, определить конструкцию подосновы, габариты и уклон бетонной конструкции, а также требования по составу бетона и наружной кромки конструкции.
Не менее важным считается документ, определяющий качество строительных работ по схемам операционного контроля качества, изданного в 2011 году, в соответствии с которым государственной комиссией будет приниматься дом в эксплуатацию.
Согласно СНиП, отмостка должна иметь предельные размеры:
- Минимальная ширина: 1 м для 1 кл. грунтов, 2 м — для 2 кл. на 200 мм от вылета козырька. Для плоских крыш — минимальное значение должно быть 500 мм от стены.
- Глубина не может быть более 1/2 уровня промерзания грунта по месту пребывания объекта.
- Максимальная толщина грунта под бетонной конструкцией -150 мм.
- Минимальный слой песка не ниже 30 мм.
- Толщина бетона устанавливается по эксплуатационной нагрузки, в диапазоне 70 -170 мм.
- Высота конструкции от уровня земли — не менее 50 мм, чтобы вода не скапливалась на ней.
Обустройство мягкой отмостки
Инструкция по изготовлению мягкой утеплённой конструкции для защиты постройки:
- На расстояние примерно до 1,5 м от дома очищается поверхность земли от кустарников и деревьев. Они выкорчёвываются;
- Делается разметка. Периметр будущей полосы размечается вокруг здания колышками и верёвкой. Их устанавливают через каждые 1,5 – 2 метра;
- Роется траншея. По разметке копают котлован на 30-35 см в глубину в зависимости от пласта запланированных материалов;
- Рекомендация: чтобы после завершения заливки было комфортно ставить бордюрные камни, траншею нужно копать на 30 см шире. Когда лента 100 см в ширину, то траншею обустраивают 120-130 см в ширину. Если необходимо, то можно применить для разделения материала иглопробивной геотекстиль;
- Укладка образующего уклон слоя для правильной отмостки вокруг дома своими руками. Для этого в траншее обустраивают песочную подушку в 10 см, которую затем смачивают и трамбуют виброплитой или бревном. Возле стены строения пласт песка нужен на 5 см больше в сравнении с наружным краем траншеи. Уклон 1-10% позволит эффективно отводить влагу от основания сооружения;
- Утепление конструкции при пучинистом грунте. Для этого на песчаный пласт укладывается эффективный утеплитель. Например, экструзионный пенополистирол. Это позволит защитить фундаментную часть от промерзания и действия зимнего пучения почвы;
- Укладка специальной мембраны PLANTER Geo на утеплитель. Укладывается шипами вверх так, чтобы она частично заходила на стену строения и наружную стенку траншеи. Поэтому мембрану делают на 30-35 см шире траншеи. Её со стороны стены дома для надёжности надо закрепить планкой и винтами (используют и альтернативные крепления). Полотна мембраны требуется укладывать с небольшим нахлёстом (не менее 4 см выступа) и швы проклеить самоклеящейся лентой из битума и полимера, а нахлёсты геотекстиля двухсторонней клеящей лентой;
- Укладка слоя щебня 8-15 см и уплотнение его виброплитой;
- Установка бордюра для мягкой отмостки вокруг дома своими руками. Отступив 1 м от стенки здания, на щебёночную подушку устанавливается бордюр, который должен располагаться выше уровня мембраны – так он не будет мешать отводу воды от основания здания;
- На предпоследнем этапе на щебневую укладку выкладывается облицовочное покрытие – гравий или газон;
- На финальном этапе работ под водосточные трубы монтируются желоба для отвода воды.

Укладывается подобная защитная полоса вблизи любого строения намного быстрее бетонной, да и прослужит она долгое время (50 и более лет).

В последние время все чаще используют мягкий тип, потому что он обходится дешевле (отсутствует необходимость в дорогих бетонных работах) и не разрушится при сезонных подвижках пучинистых грунтов. Кроме того, при обустройстве не требуется делать компенсационные швы. Но бетонная укладка более прочная и капитальная, поэтому по-прежнему популярна в обустройстве жилых домов и нежилых сооружений.
Толщина отмостки вокруг дома
Толщина покрытия отмостки – единственный параметр конструкции, который не регламентируется нормативами. Ширина полужесткой отмостки задается толщиной используемого облицовочного материала. А толщина отмостки вокруг дома из бетона и асфальтобетона надо вычислить, это необходимо для определения объема раствора, который будет использоваться в процессе монтажа.Чтобы точно просчитать толщину отмостки необходимо перемножить минимальную толщину армированного бетона (около 70 мм), величину уклона и ширину ленты, а затем разделить на 100. К полученному число нужно добавить толщину бровки – это и будет толщина у цоколя.
Плюсы и минусы
Каждый способ отвода воды от дома имеет свои преимущества и отрицательные стороны.
Главный плюс – отмостка из щебня очень хорошо отводит воду. При этом вода меньше разбрызгивается, чем при падении на гладкую поверхность. Это уменьшает намокание стен над цоколем и минимизирует возможность появления высолов и плесени на конструкциях. Особенно это актуально для деревянных домов.
Прочие достоинства щебеночной подушки вокруг дома:
- хорошая устойчивость к перепадам температуры. Ее можно использовать и в северных, и в жарких регионах;
- отличная теплоизоляция фундамента – уменьшает промерзание грунта и нагрузку на конструкции основания дома. Если под домом есть цокольный этаж, способствует экономии на отоплении;
- конструкция мягкая и не повреждается при просадке грунта, фундамента; не растрескивается, как бетон;
- использование недорогих материалов удешевляет конструкцию;
- несложная технология и возможность выполнить все работы своими руками;
- универсальность – такой тип отмостки можно использовать с фундаментом любой конструкции – ленточным, плитным, свайным, столбчатым;
- ремонтопригодность – при нарушениях щебеночную подушку легко восставновить;
- использование декоративной щебенки помогает реализовать самые оригинальные дизайнерские идеи;
- возможность высаживать небольшие декоративные растения в щебенку – еще плюс к декоративному оформлению участка.
У отмостки из щебня имеются и недостатки. Основной – это небольшой срок эксплуатации 7-10 лет. Но нет худа без добра: это отличный повод обновить дизайн усадьбы. Кроме того, строительство дома – очень напряженный момент с точки зрения финансов. И недорогая конструкция, выполненная своими руками, поможет сохранить средства. А через несколько лет устроить отмостку из более престижных и долговечных материалов, например, брусчатки.
Но это актуально на участках с крупными деревьями. А если рядом газон – выручит садовый пылесос.





































