Проекты загородных домов из газобетонных блоков
1. Одноэтажный дом с террасой 10×14.
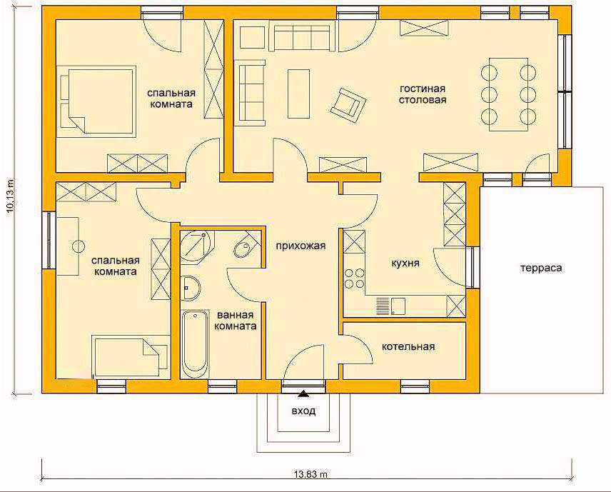
Вход в дом расположен с южной стороны. За дверью находится просторная прихожая Г-образной формы. Это помещение занимает центральное положение и служит своеобразным указателем передвижений по дому. Спальные комнаты изолированные, что очень удобно для жильцов. Из прихожей можно попасть в любую часть дома. Сразу у входа находится котельная, за ней вход в кухню.
Северо-восточную часть дома занимает гостиная-столовая. Она условно разделена на 2 зоны – обеденную и для отдыха. Это самое просторное помещение, в котором удобно расположиться всей семьей перед телевизором или принимать гостей за большим столом. Возле него установлено широкое двустворчатое окно, впускающее в дом много дневного света.

Через открытый арочный проход гостиная соединяется с кухней. Такое проектирование отличается продуманностью и эргономичностью. Из кухни также есть выход на большую открытую террасу. Днем здесь хорошо прятаться от летнего зноя. Вечером можно устраивать чаепития и любоваться цветущим садом.
2. Проект двухэтажного дома из газоблоков Марбург.
1-го этаж.
По плану здесь располагаются технические и вспомогательные помещения. Из большой прихожей можно сразу попасть в комнату для гостей на 9 кв.м, где может остановиться 1-2 человека.

Затем путь ведет в гостиную. Это самая большая комната этажа, в котором свободно разместится шумная компания из 10-15 человек. Отсюда легко попасть в кухню, что очень удобно для обслуживания гостей. Кухня в свою очередь объединяется со столовой в помещение площадью 18.кв.м. Здесь достаточно места для приготовления и приема пищи 5-6 человек. Есть выход на небольшую открытую террасу. Летом на ней хорошо устраивать семейные и дружеские встречи.
2-й этаж.
Наверх коттеджа можно подняться по угловой лестнице, расположенной в холле. По схеме второй этаж представляет сплошную зону отдыха. Проектом предусмотрено 2 детских комнаты практически одинаковой площади. В родительской спальне выход на балкон. Также имеется совмещенный санузел большой площади. Жилая площадь всего дома – до 150 кв.м. Рассчитан на постоянное проживание семьи из 4-5 человек.
3. Дом с гаражом и мансардой Штендаль.
1 этаж.
По проекту опасть в дом можно через три разных двери. По одному входу есть на террасах, расположенных с противоположных сторон строения. Третий вход находится в гараже, он пристроен к дому с юго-западной стороны. Гараж сложен из стеновых газоблоков, как и весь дом.

Кухня-столовая, гостиная и холл составляют единое пространство. Для гостей предусмотрена небольшая комната отдыха. Рядом располагаются технические помещения.
Мансарда.
Верхняя часть дома является территорией для отдыха. Здесь 4 изолированные спальни, большая ванная и отдельный санузел. В двухэтажном доме достаточно места для одновременного проживания 5-7 человек.
4. Проект одноэтажного коттеджа из газобетона Констанц.
1 этаж.
Главный вход в дом ведет через высокое крыльцо. Вторая дверь располагается на крытой террасе с противоположной стороны коттеджа. Попасть в дом можно через гараж, пристроенный сбоку.

Центральной частью 1-го этажа является гостиная. Это единственное жилое помещение внизу. Из него можно выйти в холл, на террасу или кухню. Здесь же устроена угловая лестница, ведущая наверх.
Мансарда.
На верхнем этаже холл, 2 раздельные спальни и ванная. Отсюда также можно попасть на чердак. Общая площадь нижней части дома – около 100 кв. м. Это компактное удобное строение для семьи из трех человек.
Требования к стенам пристроя
В строительстве толщина стен (наружных и внутренних) выбирается на основании теплотехнического расчета, учитывающего климатическую специфику региона застройки, категорию грунта, ветровую нагрузку и другие важные параметры.
Самостоятельно справиться с такой задачей не всегда удается, поэтому приходится ориентироваться на технические значения класса прочности и энергоэффективности газоблочных изделий:
- В зависимости от климатических условий для кладки наружных стен отапливаемых построек применяют газобетоны толщиной 300-400 мм марки D500.
- Для внутренних стен рекомендуется применять блоки толщиной 200-300 мм марки D400.
- Межкомнатные перегородки устраивают из блоков марки D300, обладающего лучшими звукоизоляционными характеристиками.
Блоки этих марок характеризуются отличными теплоизоляционными свойствами и позволяют аккумулировать внутреннее тепло. Если сравнивать пристройку, построенную из классического кирпича и ячеистого бетона, в последнем варианте экономия энергоресурсов на отопление составляет 40%.
Наружные стены из газобетона имеют ограничения по высоте, связанные с невысокой прочностью материала. По этой причине конструкция стен одноэтажной пристройки высотой 2,5-3 метра предусматривает устройство укрепляющего армирующего пояса, укладываемого по всему верхнему периметру наружных стен.
Сроки и расчет строительства загородных домов из газоблока
На сроки строительства могут оказывать влияние такие факторы, как площадь здания, тип фундаментного основания и кровли, сложность монтажных работ и т. п. Однако существуют средние показатели, которые можно взять за основу для выполнения предварительных расчетов.
Таблица со средними сроками строительства:
| Тип работ | Сроки |
| Обустройство фундаментного основания | 1,5-2 месяца |
| Возведение стен и перекрытий в доме из газобетона | 1-2 месяца |
| Монтаж стропильной системы и кровли | 2-4 недели |
| Установка дверных и оконных конструкций | 10-15 дней |
| Монтаж электропроводки | 8-15 дней |
| Установка коммуникационных систем | 25-30 дней |
| Монтаж финишной отделки | 2-4 месяца |
Калькулятор дома из газобетона: формула расчетов
Даже если предполагается строительство небольшого одноуровневого дома из газоблоков, придется произвести множество расчетов перед началом работ. Причем чем больше этажей имеет здание, тем более точными должны быть вычисления.
Для расчета газоблоков все стены необходимо разделить на три группы с учетом их толщины. Одна из них будет включать наружные стены, вторая – внутренние несущие, а третья – внутренние перегородки. Для каждой группы производятся свои вычисления. В результате нужно определить длину стен, а также площадь, которая приходится на дверные и оконные проемы.
Затем необходимо вычислить объем стеновых поверхностей. Для этого следует перемножить их основные показатели: длину, ширину и высоту. Из полученного результата вычитается площадь дверных и оконных проемов. После этого необходимо разделить объем стеновых поверхностей на объем одного строительного блока. Таким образом, можно узнать, сколько газоблоков потребуется для сооружения дома.

Перед началом строительства необходимо произвести тщательный расчет для определения количества материалов
Для строительства наружных несущих стен желательно использовать изделия параметрами 20х30х60 см. Объем таких блоков равен 0,036 м³. Внутренние несущие стены чаще всего возводятся на основе материала, имеющего такие же размерные показатели, причем укладку газобетона можно выполнить плашмя. К внутренним перегородкам предъявляются менее жесткие требования. Для их строительства подойдут изделия размером 10х30х60 см. Объем этих блоков – 0,018 м³.
Монтаж второго и следующих рядов
Укладка всех последующих рядов также начинает проводиться с угла. После каждого из них нужно проверять ровность поверхности и убирать лишние остатки клеящего раствора. Те ряды, которые будут находиться под наклоном, можно монтировать двумя способами – спиливать часть блока готового слоя, или же менять размер газоблока непосредственно до его укладки.
Укладка газобетона с углов и установка маячков
Второй вариант более распространенный, потому что он отличается своей простотой и экономичностью, но, в свою очередь, на его реализацию понадобится больше времени.
- во время монтажа фундамента и стен использовались битумные материалы;
- нужно укрепить теплые и холодные стены;
- изменить толщину стен;
- необходимо скрыть пересечение между несущими стенами;
- в проекте дома из газоблока используются колоны и арки;
- стены дома имеют разную высоту.
Не забывайте, что во время строительства распечатывать газоблоки необходимо только по мере необходимости. Незадействованный материал разумнее всего хранить в упаковке. После окончания работ с определенным фрагментом объекта обязательно защитите его строительной пленкой (особенно в лютые морозы). Это решение имеет два основных преимущества: обеспечит должным образом равномерное застывание смеси и сумеет обезопасить газоблоки от климатических осадков.
Зависимость сопротивления теплопередаче от плотности бетона
Для обозначения способности материала проводить тепло применяется коэффициент теплопроводности. Данная величина является относительной и указывает на количество тепла, способное пройти в течение 1 часа через материал, который имеет толщину 1 метр, площадь 1 кв. м при разнице температуры по обеим сторонам в 1° С.
У конструкционных видов пенобетона способность проводить тепло самая высокая и составляет от 0,38 до 0,26. Конструкционно-теплоизоляционные марки имеют следующие коэффициенты: у Д1000 данный показатель находится в пределах 0,23-0,29, у Д800 – 0,18-0,22, Д700 имеет коэффициент в пределах 0,16-0,18, а теплопроводность пеноблока Д600 составляет 0,13-0,14. Теплоизоляционные марки блоков имеют следующие характеристики: теплопроводность пеноблока Д500 находится в пределах 0,10-0,12, Д400 – 0,09-0,10, а Д300 — 0,8.

Сравнение теплопроводности пеноблока разных марок и видов приведено в таблице, размещенной ниже.
Разница величины коээфициента у одной и той же марки пенобетона может зависеть от того, какие составляющие применялись для замешивания бетона. Так, например, если в составе блоков Д500 будет песок, значение коэффициента будет равно 0,12, если же в смесь была добавлена зола, показатель уменьшится до 0,10. Чем выше марка вспененной бетонной смеси, тем разница в коэффициентах будет выше. Если для Д600 отличие будет составлять всего 0,2, то у Д1200 разница может доходить до 0,9
Поэтому при покупке данного строительного материала следует обращать внимание не только на маркировку, но и на состав смеси
Таблица теплопроводности пеноблоков с сравнением показателей в зависимости от составляющих, которые были использованы для замешивания раствора, приведена ниже.
Расчет теплопроводности стен из пенобетона
Чтобы дом имел необходимые характеристики теплопроводности, пеноблоки разной плотности следует укладывать на различную толщину. Рассчитать оптимальную толщину стены можно следующим образом.
Следует определиться с тем, при помощи чего будет проводиться возведение стен. Чаще всего применяется два варианта: кирпич-блок-штукатурка и оштукатуренный с двух сторон блок.
Чтобы провести расчеты следует знать коэффициенты теплопередачи материалов, которые будут входить в состав стены (кирпич – 0,56, штукатурка — 0,58, блоки определяем по таблице) и коэффициент сопротивления стен теплопередаче (как правило, среднее значение равно 3,5). Из общего значения 3,5 необходимо вычесть значение сопротивления теплопередаче 20 мм штукатурки (0,02:0,58 = 0,03) и 120 мм кирпича (0,12: 0,56 = 0,21) для первого варианта или 40 мм штукатурки (0,04:0,58 = 0,06) для второго варианта исполнения.
В первом случае, при использовании кирпича, бетонная стена должна обеспечить сопротивление теплопередаче на уровне 3,26. При использовании марки Д600 толщина ее будет составлять 456 мм (3,26*0,14 = 456), в случае использования Д800 следует выложить стену толщиной не менее 684 мм (3,26*0,21 = 684). По этой же формуле можно рассчитывать стены с использованием любой марки ячеистого бетона.
Для варианта стены, оштукатуренной с двух сторон, из значения 3,5 отнимаем 0,06 (40 мм штукатурки) и далее проводим расчеты для нужной марки бетона согласно таблице, в которой проведено сравнение показателей теплопроводности.
Свойства газобетона
Газобетон также как и пенобетон отличается хорошей паропроницаемостью и теплоемкостью. Производство газобетона предполагает проведение некоторых довольно сложных операций, которые просто невозможно провести в условиях кустарных и без использования дорогого современного оборудования. Поэтому, в случае с газобетоном, можно быть полностью уверенным, что покупаете качественный продукт. Этим же объясняется и то, что газобетон примерно на 20% дороже пенобетона, но все еще дешевле кирпича примерно на 25%.

Долговечность газобетона обеспечивается тем, что он производится в автоклавах, использование которых гарантирует равномерное распределение пор и отсутствие в блоках слабых участков. Газобетон практически безусадочен (всего около 0,3 мм на метр), и это гарантированно защитит будущий дом от появления трещин.
Газобетон очень хорошо поддается ручной обработке: легко сверлится, пилится и фрезеруется. Помимо того производители выпускают довольно большую линейку типоразмеров, а также различные дополнительные элементы: дугообразные блоки, соединители для стен, сборно-монолитные перекрытия, специальные блоки используемые при устройстве монолитных поясов.
Еще одним преимуществом газобетона является и то, что практически идеальное совпадение размеров (допустимое отклонение граней не более 1мм) позволяет производить тонкошовную кладку стен на специальные кладочные клеи. Что ускоряет строительство, экономит средства на строительные материалы, предотвращает от появления мостиков холода в случаях как с толстыми швами, что в свою очередь снижает расходы на отопление дома. Дома из газобетона такие же экологичные, как и дома из дерева, поскольку газобетон не выделяет в атмосферу никаких вредных соединений, стены паропроницаемы и обладают прекрасной теплопроводностью. Узнать подробнее о характеристиках газоблоков, а также приобрести их можно на сайте.
Плюсы и минусы домов из газобетона, обзор негативных мнений
Плюсы и минусы газобетона можно рассмотреть на примере домов, построенных с использованием этого материала. Пористая структура обеспечивает этим блокам множество преимуществ:
- высокую скорость строительства;
- экономичность;
- огнестойкость;
- низкий показатель тепловой проводимости;
- простую систему обработки;
- невысокую стоимость домов из газобетона;
- экологичность;
- отличный уровень паровой проницаемости;
- долговечность;
- морозостойкость.

В домах из газоблоков даже в холодный период сохраняется комфортная температура
Низкая цена домов из газобетона обусловлена несколькими факторами. С одной стороны, это дешевизна самого строительного материала. Для изготовления блоков требуется небольшое количество цемента, ведь основной объем изделий составляют поры, наполненные воздухом. С другой стороны, малые сроки строительства. Размеры блоков достаточно велики, чтобы сократить длительность этого процесса, а значит, удешевить его. Кроме этого, кирпич в таком же объеме весит гораздо больше (примерно в 3-5 раз). В результате строительные материалы и рабочее время используются более рационально.
Низкий уровень тепловой проводимости позволяет даже зимой сохранять в доме комфортную температуру. Газобетон удерживает тепло в доме примерно в 2-3 раза лучше, чем кирпич. Энергоэффективность стены толщиной 37,5 см, сложенной из газоблоков, такая же, как и у кирпичной кладки, толщина которой составляет 60 см. Блоки достаточно хорошо поддаются любым видам обработки: штроблению, распиливанию, фрезеровке. Изделия можно легко разрезать даже с помощью ручного инструмента, именно поэтому на фото домов из газобетона можно увидеть красивые здания со сложными архитектурными формами.
Газобетон относится к группе негорючих материалов. Если на стену из таких блоков будет воздействовать в течение 2 ч пламя, температура которого выше 100 °C, поверхность покроется трещинами глубиной всего 30-40 мм. Этого времени будет достаточно, чтобы эвакуировать всех жильцов коттеджа из газобетона прежде, чем перекрытия здания упадут. Деревянный дом в аналогичных условиях выгорит до основания.

В домах из газоблоков даже в холодный период сохраняется комфортная температура
Если блоки изготовлены без нарушения технологии, они не имеют неприятных запахов, экологичны и прекрасно пропускают воздух. Известны случаи, когда сроки службы газобетона составляли 40-50 лет.
Какие недостатки присущи газобетону: минусы материала
Та же пористая структура, обеспечившая газобетонным блокам столько преимуществ, стала источником и некоторых недостатков. Одной из слабых сторон является низкий уровень прочности на изгиб. Коэффициент предельной деформации этого материала находится в пределах 0,5-2 мм/м. Если деформационные изменения выйдут за рамки данных показателей, стены дома могут покрыться трещинами.
Исключить вероятность подобного исхода поможет строительство сплошного фундамента для дома из газосиликатных блоков, усиленного с помощью сетчатого армирования или монолитной обвязки. Кроме этого, желательно выполнить армирование кладки и обвязку перекрытий.
Благодаря пористой структуре материала монтаж крепежа (саморезов, анкеров, гвоздей) выполняется очень легко, но надежность его фиксации оставляет желать лучшего. Для газобетонных стен нужно подбирать специальные детали. Лучше отдать предпочтение рамному, нейлоновому или стальному крепежу. В таких условиях особого внимания заслуживает установка дверных и оконных конструкций. Если нарушить технологию, со временем они могут расшататься.

Дома из газосиликатных блоков не желательно строить выше 1-3 этажей
Адгезивные свойства материала не на высоте, поэтому перед нанесением штукатурки на газобетонные стены выполняется армирование поверхности. Грунтование также помогает решить проблему с адгезией. Среди недостатков зданий из газобетона также числится большая усадка. Смещение неавтоклавных блоков достигает 2 мм/м. Показатель автоклавного газобетона чуть меньше – 1 мм/м.
Делаем крышу
Мауэрлат у нас уже смонтирован. Пришло время установить стропила. На этом этапе все индивидуально – ориентируйтесь на особенности выбранной кровельной конструкции.
Доступно несколько вариантов:
- односкатная крыша. Для жилых домов используется редко. Преимущественно такой кровлей перекрывают сараи и прочие хозяйственные постройки;
- двускатная крыша. Подойдет для дачного дома;
- мансардная, вальмовая и прочие сложные конструкции. Лучший выбор для полноценного жилого дома из газобетонных блоков.
Делаем крышу
Делаем крышу
Делаем крышу
Делаем крышу
Делаем крышу
Делаем крышу
Делаем крышу
Делаем крышу
Вне зависимости от выбранной конструкции кровли, ее нужно укомплектовать изоляционными слоями: гидро-, тепло- и пароизоляцией. В отдельных случаях (к примеру, когда обустраивается жилая мансарда) монтируется слой шумоизоляционного материала.
Утепление

Утепление
Поверх стропил закрепляем гидроизоляционный материал. Удобнее всего это делать с помощью деревянных реек. Одновременно рейки будут играть роль контробрешетки, к которой в дальнейшем зафиксируются рейки обрешетки для кровельного материала.
Под гидроизоляцию в пространство между рейками обрешетки укладываем утеплитель. Чаще всего используется минеральная вата. При желании можете выбрать другой материал (пенополистирол, пенопласт и пр.).

Пароизоляция и обрешетка
Теплоизоляцию закрываем слоем пароизоляционной пленки. Ее крепим к стропилам с помощью деревянных реек.
В завершение укладываем финишное кровельное покрытие. В этом моменте ориентируйтесь на доступный бюджет и личные предпочтения. Самые популярные материалы:
- шифер;
- битумная черепица;
- профнастил;
- металлочерепица;
- керамическая черепица.
Любой кровельный материал укладываем, начиная снизу. В результате листы будут закреплены так, что осадочная влага сможет стекать, не проникая под кровельный настил.

Монтаж ондулина
Монтаж ондулина

Монтаж ондулина

Монтаж ондулина

Обустройство мансарды

Установка окон
Фундамент и подготовка площадки

Под плитный фундамент перед его заливкой необходимо подвести все коммуникации
В качестве основания под свой газоблочный дом чаще всего используют два типа фундаментов:
- Ленточный мелкозаглубленный. Такой базис имеет толщину 40-70 см и отлично справляется с несущей нагрузкой готового дома, поскольку газобетон имеет малый вес. Фундамент можно делать ленточный монолитный, что менее затратно, либо бутобетонный. Второй вариант требует большего расхода времени и человеческих трудозатрат. Однако и тот, и другой тип фундаментов долговечны и надежны. Цена ленточного каркаса будет существенно ниже, чем стоимость плитного базиса.
- Если же грунт на участке пучнистый, то под газобетонный дом устраивают монолитный фундамент-плиту. Такая бетонная подушка еще носит название плавающий фундамент. Его особенность в том, что он может лавировать в грунтах участка вместе со зданием, не поддаваясь силе давления почвы в сезоны пучения. Таким образом дом своими руками остается целым и невредимым независимо от изменений в структуре грунта. Монолитный плитный фундамент заливают бетонной смесью по всей площади будущего дома и при этом обязательно армируют.
Земельные работы под устройство фундамента того или иного типа включают в себя копку траншеи или котлована, тщательное уплотнение грунта и обязательную укладку песчано-гравиевой подушки. Бетонная смесь заливается исключительно в деревянную опалубку, укрытую изнутри листами рубероида.
Фундамент в сухое и тёплое время года сохнет от трех до четырех недель. Готовый фундамент необходимо тщательно гидроизолировать со всех сторон, чтобы впоследствии начинать кладку материала по гидроизоляции. Это позволит защитить газобетон от проникновения в него влаги со стороны грунта.
После выполнения всех работ можно приступать к строительству стен дома.
Газобетон или пенобетон: делаем выбор
Рассматривая различные проекты домов и коттеджей, прежде всего стоит определиться с материалом для строительства. Многие путают газобетон с пенобетоном, так как они очень схожи. Оба типа блоков относятся к легким ячеистым бетонам, они пористые, но характеристики и показатели предполагают разные.
Основные отличия по свойствам газобетона и пенобетона заключаются в процессе производства. Газобетон делают из песка, цемента, воды, извести и алюминиевой пудры, вступающей с известью в реакцию и провоцирующей создание открытых пор, а пенобетон производится с использованием специальных пенообразователей и пеногенераторов.
За счет особенностей производства в газобетоне поры открытые, что делает его способным сильно и быстро впитывать влагу, в пенобетоне – закрытые, за счет чего даже в воде материал выступает в роли поплавка
Немаловажно и то, что газобетон автоклавный обычно делают только на больших производствах, с гарантией высокого качества, а пенобетон можно создавать и в домашних условиях, из-за чего на рынке много материала с низкими характеристиками
Касательно производства также нужно отметить то, что газобетон делают в большом монолите, а потом режут на точные по размерам блоки. Пенобетон же заливают в формы и при извлечении они могут ломаться, скалываться.
Сравнение характеристик газобетона и пенобетона:
- Величина и равномерность пор – у газобетона открытые и равномерно распределены по материалу, у пенобетона разные по объему, что соответствующе сказывается на плотности и прочности.
- Плотность – одинаковые значения, находится в пределах 300-1200 кг/м3, зависит от марки (так, у D400 плотность 400 кг/м3).
- Масса – также напрямую зависит от плотности, варьируется в пределах 20-30 килограммов блок. Кубический метр марки D500, к примеру, весит около 500 килограммов.
- Прочность – оба материала демонстрируют низкую прочность на изгиб.
- Набор прочности – газобетон уже на ранних стадиях приобретает проектный показатель, который снижается в процессе хранения. Пенобетон демонстрирует нужные показатели через 28 суток, набирает в процессе эксплуатации.
- Геометрия и размеры – газобетонные блоки более ровные, с четкими параметрами, что позволяет делать более тонкий кладочный шов и строить здания ровными, пеноблок может показывать отклонения.
- Водопоглощение – пенобетон намного хуже впитывает воду (показатель на уровне 15-20%), газобетон боится воды (влагопоглощение до 85%).
- Теплопроводность – при идентичной марке блока (и плотности) газобетон лучше хранит тепло: так, при строительстве дома в Москве толщина стены из пеноблока D500 должна быть минимум 60 сантиметров, из газоблока D500 – минимум 45 сантиметров.
- Усадка – газобетон показывает 0.5 мм/м.п., пеноблок в пределах 1-3 мм/м.п.
- Стоимость – при выборе одной и той же марки пенобетон на 20% дешевле.
Что касается требований к фундаменту, скорости и простоты кладки, легкости обработки, требованиям по отделочным материалам, то тут пенобетон и газобетон схожи. За исключением отделки, которая в случае газобетона должна быть способной защитить от разрушающего воздействия влаги.
Таким образом, можно сделать вывод, что для строительства частного одно/двухэтажного теплосберегающего дома лучше выбрать газобетон, который намного эффективнее сохраняет тепло, демонстрирует более стабильные характеристики и на рынке представлен производителями, гарантирующими высокое качество.
Область применения
Благодаря недорогому производству и прекрасным характеристикам на рынке газобетона все больше – множество компаний предлагают высококачественный материал, который пользуется стабильно высоким спросом. Область применения газобетона достаточно обширная – из него выполняют объекты жилищного строительства разного типа, коммерческие и промышленные здания, разнообразные сооружения.
Сферы применения газобетона:
- Кладка стен – стандартные блоки используются в строительстве несущих стен в зданиях до 3 этажей, а также для возведения внутренних перегородок в строительных объектах любой высоты. Стеновые блоки выполняются в разных размерах, со специальными выступами и впадинами, создающими тепловой замок.
- Строительство полностью из газобетона – реализуются проекты небольших по этажности жилых и промышленных зданий, на которые не предполагается воздействие слишком высокой нагрузки.
- Заборы – на приусадебных участках часто строят из газобетона, с обязательным обустройством бетонного фундамента (класть блоки непосредственно на грунт запрещено).
- Возведение бани – газобетонные блоки просто идеальны для этих целей благодаря минимальной горючести и максимальному теплосбережению.
- Создание монолитных конструкций – материал заливают в опалубку для реализации тех или иных задач.
- Теплоизоляция – часто газобетон используют для утепления, выбирая минимально плотные блоки (они же не очень прочные) низкой марки.
Как правильно выбрать типовой проект дома из газобетона
При выборе проекта дома в первую очередь нужно обращать внимание на используемый в нём фундамент. Чтобы знать, какой тип подходит в вашем регионе строительства, скорее всего, нужно заказывать специальные геодезические исследования
Тогда на все 100% будете уверены, что со временем основание не даст трещину, его не будут подмывать грунтовые воды, и оно не увязнет в пучинистых грунтах.
Также заранее перед оплатой проекта обязательно ознакомьтесь с условиями данной организации, а именно, какую документацию на проект они предоставляют – обязательны три вышерассмотренных раздела. Некоторые компании «хитрят», не предоставляя развёрнутый инженерный раздел, ссылаясь на тонкости строительства в конкретном регионе. Хотя, по сути, устройство вентиляции и прочих систем от этого не зависит. Разве что нюансы исполнения. Поэтому будьте бдительны и не экономьте на покупке проекта своего будущего дома.
Готовые проекты домов из газобетона под ключ и цены
Разработкой чертежей для строительства домов из газобетона под ключ занимаются специализированные компании, имеющие разрешение на выполнение проектных работ. В лицензии прописаны все категории и виды объектов, которые могут разрабатываться организацией. Такие фирмы предлагают готовые проекты зданий с типовыми планировками. При желании застройщик может заказать в специализированной компании разработку индивидуального решения. Разумеется, такой проект обойдется значительно дороже, чем типовой вариант чертежей.
На сайтах строительных компаний можно найти десятки готовых проектов домов из газобетона. Информация подается в виде каталогов или рекламных проектов, поэтому пользователи без труда могут подобрать оптимальный объект для своего участка.

Разработкой чертежей для строительства домов из газобетона занимаются специализированные компании
Дома из газобетона: проекты и цены на строительные услуги
Чаще всего на сайтах компаний размещены типовые варианты зданий с оптимальными для жизни планировками. Заказчикам предлагается построить дом из газобетона:
- с одним этажом;
- с двумя этажами;
- с мансардой;
- с гаражом;
- с навесом для автомобиля;
- с цокольным этажом;
- с гаражом и мансардой;
- с верандой;
- комбинированный вариант (строительство из газобетона в сочетании с другими материалами, например, древесиной).
Сколько стоит построить дом из газобетона (проектная документация):
| Габариты здания, м | Кол-во этажей | Общая площадь, м² | Цена проекта, тыс. руб. |
| 6х6 | 1 | 34,3 | 18 |
| 6,2х6,2 | 2 | 52,8 | 18 |
| 6,5х8,5 | 2 | 62,2 | 19 |
| 10,6х11,4 | 1 | 81,1 | 20 |
| 7х8,8 | 2 | 83 | 21 |
| 8,6х8,6 | 2 | 89,6 | 25 |
| 7,2х8,1 | 2 | 93,9 | 23,5 |
Если владелец земельного участка не собирается заниматься строительством дома из газобетона своими руками, он может приобрести проект здания под ключ. В этом случае опытные сотрудники компании самостоятельно выполнят подготовку площадки и все виды работ:

Проект одноэтажного дома 10х15 м
- топографическую съемку строительной площадки;
- геологические и геодезические исследования участка;
- разработку проекта сооружения с учетом всех строительных стандартов;
- подбор качественных сертифицированных материалов для строительства;
- определение оптимального положения здания по отношению к сторонам света и естественному освещению;
- планировку технических помещений с учетом требований безопасности;
- прокладку инженерных и коммуникационных систем;
- разработку дизайна здания, который будет согласовываться с окружающим ландшафтом;
- создание виртуального макета в формате 3D, позволяющего наглядным образом ознакомиться с архитектурными особенностями здания, его дизайном.
Цена строительства домов из газобетона (проекты под ключ):
| Габариты здания, м | Кол-во этажей | Общая площадь, м² | Цена проекта, млн руб. |
| 6х6 | 1 | 34,3 | 1,28 |
| 6,2х6,2 | 2 | 52,8 | 1,14 |
| 6,5х8,5 | 2 | 62,2 | 1,53 |
| 10,6х11,4 | 1 | 81,1 | 3,04 |
| 7х8,8 | 2 | 83 | 1,97 |
| 8,6х8,6 | 2 | 89,6 | 2,21 |
| 7,2х8,1 | 2 | 93,9 | 2,23 |
Как адаптировать типовой проект для строительства дома из газобетона на участке
Типовые чертежи не учитывают личных предпочтений владельца загородного участка. То же самое можно сказать о бесплатных проектах домов из газобетона, которые можно найти в свободном доступе в интернете. Кроме этого, подобные чертежи составлены без учета предъявляемых требований к участку и условий, которыми он располагает. Поэтому готовую документацию все равно придется адаптировать под особенности конкретного объекта и внести соответствующие поправки.

Самостоятельно вносить коррективы в проектную документацию не разрешается без консультации со специалистом
Чаще всего изменения в типовых проектах касаются:
- размеров оконных конструкций, которые могут быть уменьшены или увеличены;
- размещения перегородок (конструкции могут удаляться или переноситься в другое место);
- финишной отделки (отделочные материалы могут быть заменены на другие с аналогичными свойствами и уровнем качества).
Не разрешается самостоятельно вносить коррективы в проектную документацию без консультации со специалистом. Это требование касается деталей, от которых зависит прочность сооружения:
- перепланировки помещений с переносом несущих элементов и стен;
- смены архитектуры, которая может ухудшить целостность фасадной части здания и другие защитные параметры;
- замены строительных материалов на более тяжелые или менее прочные.
Как перезимовать без отопления
Если дом уже построен, а подключение к центральному отоплению или газовой линии предвидится не раньше следующего года, нужно подготовиться к зимовке.
Меры, которые помогут пережить зиму без потерь:
- слить воду из всех систем;
- закрыть наглухо окна и двери или закрепить в проемах плотную пленку в 2 слоя;
- утеплить фундамент, цоколь и отмостку плитами пенополистирола.
На одну-две зимы здание можно оставить без наружной отделки. Морозостойкость газобетона — 50-100 циклов. Такое количество замораживаний и оттаиваний материал переносит без изменения свойств.

Надолго газобетон без защиты от осадков бросать не рекомендуется. Он обладает водопоглощением 20-25% от массы, склонен переувлажняться и разрушаться при отрицательной температуре.
Строительство домов из газобетона имеет свои плюсы и минусы
Основные характеристики газосиликатных блоков:
+ Плюсы:
Неоспоримым плюсом данного вида строительства является его приемлемая цена, простота возведения, а также такие характеристики материала строительства, как , хорошая тепло- и шумоизоляция.
— Минусы:
Однако у недорогих домов из газобетона имеются свои минусы. Во-первых, это необходимость возводить массивный, основательный фундамент. Еще один недостаток газобетона, это его свойство впитывать влагу, что может стать причиной потери им таких характеристик, как теплоизоляция и прочность. Но качественный, современный газобетон воду практически не впитывает, но так бывает не всегда. Поэтому большое значение имеет правильная отделка дома из газобетона.
Выбираем фундамент для дома из блоков
Газобетнонные дома устанавливаются на прочные и надежные монолитные, ленточные или столбчато-ростверковые фундаменты. Глубина заложения фундамента определяется исходя из географии строительства, и связана с уровнем промерзания почв на участке.
Важной особенностью фундамента под дом из газобетона является его достаточная ширина и отступ от внешней стены строения. Связано это с тем, что подобные конструкции нуждаются в хорошей отделке
Также необходимым условием при возведении цоколя является исключение соприкосновения газобетонной кладки с грунтовыми водами, осадками и снежными сугробами.
Как сделать сейсмопояс
По завершении обустройства ряда с перемычками, следует перейти к монтажу армопояса. Для изготовления конструкции, как правило, используется железобетон, от материала зависит целостность постройки. Для формирования опалубки по периметру стен понадобятся десятисантиметровые блоки. Канаву нужно заполнить арматурой и залить раствором из цемента.
В армопояс вмуровываются шпильки из арматуры, их следует предварительно обернуть. Это позволит сохранить крепление во время заливки бетона. Также могут использоваться элементы с резьбой, что упростит крепление мауэрлата.
Детальная информация об армопоясе под крышу представлена в ролике:





































