Реально ли создать планировку полностью «под себя»?
Если вы покупаете построенный объект — увы, нет. Если дом построен даже без стен, в его проекте уже заложено расположение коммуникаций, окон, дверных проемов, зонирование и т. д.
Если вас это не устраивает, вы можете заняться строительством своего коттеджа самостоятельно. Благо, в пригородах Москвы, сегодня продается много привлекательных земельных участков, в том числе, на территории благоустроенных коттеджных поселков. Приобретение земли без недвижимости обойдется вам дешевле и даст неограниченное количество вариантов для возведения жилья по своему вкусу.

Самостоятельное строительство позволит вам выбрать стройматериалы и варианты отделки по собственному усмотрению. Вам не нужно будет ограничиваться требованиями по части внешнего вида фасада и габаритов жилья. Собственник может изначально выбрать уникальную стилистику, например:
- построить дом-шале;
- одноэтажный коттедж с панорамным остеклением;
- или наоборот двухэтажный со вторым светом;
- возвести каменный замок и др.
На этапе реализации собственного проекта, важно заручиться поддержкой опытного архитектора и дизайнера. Специалисты помогут избежать всех подводных камней, связанных с практической стороной воплощения всех ваших идей
Это позволит вам, впоследствии, по-настоящему наслаждаться проживанием в доме, и не сталкиваться с непредусмотренными мелочами и неудобной планировкой, площадью комнат
Это позволит вам, впоследствии, по-настоящему наслаждаться проживанием в доме, и не сталкиваться с непредусмотренными мелочами и неудобной планировкой, площадью комнат.

Обойтись без всей волокиты поможет услуга по строительству под ключ. Она минимизирует нахождение собственника на строительной площадке. Вы получаете уже готовый результат, согласованный с вами на всех этапах.
Видео описание
Проекты домов с гаражами на 2 машины
Пристроенный гараж с внутренним входом
В данном варианте гараж имеет внутреннее сообщение с жилой частью дома. Отделяет его небольшое техническое помещение, выполняющее функцию котельной. Такой проект двухэтажного дома с гаражом на 2 машины универсален. Автомобильное помещение имеет оптимальные параметры, в нем есть окна для дневного освещения. Внутренний вход ведет через котельную в прихожую, где расположена компактная кладовая. Это очень удобно при разгрузке закупленных для семьи продуктов.

Гараж с хозблоком
Гаражная пристройка может быть увеличена за счет хозпомещения. В данном проекте хозблок используется как котельная. При этом он является вторым выходом, ведущим на задний двор. Предложенное здесь расположение хозблока подразумевает, что в нем можно будет хранить садовый инвентарь. Со стороны жилых помещений гараж отделен входным тамбуром, который одновременно защищает дом от проникновения ветра и уличной пыли. Кроме этого входной тамбур выполняет функцию прихожей с встроенным шкафом для верхней одежды.

Гараж с двумя хозблоками
В этой разработке представлен вариант пристройки, которая увеличена двумя дополнительными техпомещениями. Разделение хозблока на 2 изолированных отсека удобно тем, что каждый из этих отсеков может иметь свое назначение. Например, в одной части можно хранить продовольственные запасы, а во второй инструмент.
Рассматривая данный проект следует обратить внимание на то, что в нем внутренний вход ведет непосредственно к лестничному холлу, который, в свою очередь, никак не отделен от гостевой зоны. Это означает, что в доме не предусмотрена буферная зона
Планировка дома с гаражом на 2 машины без буферной зоны обязывает хозяев еще больше внимания уделить безопасности. Материалы его отделки должны быть подобраны еще более тщательно, в вентиляционная система должны быть максимально эффективной и надежной.

Дом с гаражом для узкого участка
При строительстве на нестандартных участках приходится применять неординарные архитектурные ходы. Так, например, здесь мы видим пример того, как можно запроектировать дом с двойным гаражом, который легко разместится на маленьком или просто узком участке. Важный нюанс – автомобильная пристройка при такой планировке будет центральным, самым заметным элементом здания, поэтому для нее необходимо хорошо продумать декоративную облицовку. Но это не проблема – современные материалы и технологии позволяют даже обычную автомобильную пристройку очень стильно и эстетично оформить.

Одноэтажный дом с пристроенным гаражом
Проект дома с гаражом, имеющим широкий навес над воротами и проходной хозблок. В хозблоке двери расположены так, чтобы в нем оставалось максимум места для размещения стеллажей и полок
Здесь нужно обратить внимание на то, что в автомобильном помещении нет окон, и освещать его можно будет только при помощи искусственного освещения. Зато в хозблоке окно предусмотрено
Существует существенная разница между проектированием двухэтажных и одноэтажных коттеджей с гаражами. В первом случае спальные помещения обычно размещают на втором этаже, и таким образом они максимально удалены от автомобильного помещения. А в одноэтажных домах с гаражом на 2 машины вопрос безопасного взаиморасположения автомобильного дома и спален решается иначе. На данном примере можно увидеть, что внутренний вход в дом ведет в тамбур, а из него в гостевую зону. При этом спальни расположены в противоположном крыле здания. Они объединены в спальный блок, закрывающийся дверью.

Дом с мансардным гаражом
Обычно гараж накрывают односкатной кровлей. Но существуют и такие проекты, в которых пространство над ним тоже используется. Так, в данном варианте пристройка имеет двускатную кровлю, под которой размещается мансардное помещение. Оно может стать спортзалом, мастерской, кабинетом или другим помещением любого назначения кроме спальни и детской. Естественно, при его обустройстве нужно хорошо продумать изоляцию межэтажного перекрытия.

Дом с террасой над гаражом
Чтобы пространство над гаражом не пропадало зря, можно его использовать для обустройства открытой террасы. Представленный ниже двухэтажный дом с гаражом на две машины запроектирован с просторной квадратной террасой, на которую можно выйти через одну из спален второго этажа.

Плюсы и минусы проекта дома с 2 гаражами
Прежде чем вы решитесь реализовать проект дома с 2 гаражами, изучите его достоинства и недостатки.
Преимущества:
- Вы сможете попасть в машину прямо из дома и сразу поехать на работу. Выходить на улицу не очень приятно, если там ветреная, морозная или дождливая погода. Когда гаражное помещение соединено с коттеджем, можно не беспокоиться, что за окном метель или ливень. После того как вы закупите продукты в супермаркете, то сможете занести тяжелые пакеты из машины домой, и вам не придется идти по улице с поклажей.
- Не возникнет проблем с проведением инженерных коммуникаций. Так как гараж отапливаемый, ваш автомобиль будет храниться в теплом помещении.
- Вы сможете разместить лыжи, велосипед, санки и другие нужные вещи в гараже, который примыкает к коттеджу. Чтобы взять то, что вам необходимо, не потребуется обходить всю территорию.
- Гаражное помещение будет многофункциональным. В нем можно оборудовать мастерскую, прачечную или разместить отопительный котел. Многие владельцы особняков в США делают именно так.
- Получится сэкономить площадь приусадебного участка.
- Ваш автомобиль будет припаркован через стенку, никто не украдет его, что часто случается, когда машина остается без присмотра.
- Над гаражным помещением можно оборудовать большой балкон и отдыхать на нем либо расположить жилую комнату.
На первый взгляд может показаться, что проект дома с 2 гаражами – идеальное решение. Однако недостатки у него тоже есть:
- Высокий риск возгорания. Вы заправляете автомобиль бензином, внутри машины множество электроники, проводка. Когда гаражное помещение примыкает к коттеджу, огонь мгновенно перебросится на жилые комнаты.
- Несмотря на то что вы сделаете качественную вентиляционную систему, выхлопные газы все равно будут поступать внутрь жилого помещения. Это может нанести вред здоровью.
- Будьте готовы к дополнительным тратам на оборудование гидро- и шумоизоляции, если не хотите, чтобы звук выхлопной системы слышали все члены вашей семьи. Когда гаражное помещение размещено на цокольном этаже, в нем будет влажно. Кроме того, следует учесть высоту расположения грунтовых вод.
- Так как часть площади первого этажа уйдет под гараж, придется строить коттедж большего размера. Будьте готовы к дополнительным тратам.
- В зимнее время года, а также в межсезонье в гаражном помещении будет скапливаться грязь и оттуда попадать в коттедж.
- Специалисты считают, что в таком гараже машина быстрее ржавеет из-за центрального отопления. Причина заключается в повышенной влажности, а также резких температурных перепадах (когда вы заезжаете с мороза в теплое помещение).
Какие плюсы есть у гаража, которые находится отдельно от дома:
- Вы сможете расположить его на въезде на территорию. Не нужно открывать ворота для того, чтобы попасть во двор. Заехать в гаражное помещение получится сразу с улицы.
- Такой гараж можно возвести из бюджетных стройматериалов, сделав легкое основание.
- Не потребуется оборудовать дополнительную звукоизоляцию.
- Выхлопные газы, а также грязь не попадет из гаражного помещения в коттедж.
Однако у гаража, который расположен отдельно от дома, есть свои недостатки:
- Уменьшится площадь земельного участка.
- Необходимо продумать подъезд к гаражному помещению. Кроме того, зимой придется расчищать дорогу до гаража, а летом подметать ее.
- Будьте готовы к дополнительным тратам на прокладку инженерных коммуникаций.
- В плохую погоду вам придется выходить на улицу, чтобы попасть в гаражное помещение.
Обратите внимание! Если вы собираетесь построить капитальный гараж, дизайн которого будет подходить к фасаду коттеджа, приготовьтесь к тому, что на его возведение вы потратите крупную сумму
Проектирование
При проектировании гаража учитывается множество правил. Он должен иметь определенные габариты. Рассчитывается размер помещения таким образом, чтобы машина в нем располагалась на расстоянии минимум 20 см от заездных ворот, 50 см от передней стены, 70 см от боковых стен и соседнего авто. Профессиональный плана дома с гаражом на 2 машины должен быть составлен с учетом всех существующих норм.

Размещение 2 автомобилей в одном помещении Источник 6speedonline.com
Рекомендуется в двойном гараже предусматривать два отдельных заезда, чтобы каждое парковочное место можно было использовать автономно. Ворота должны быть не менее 2 метров в высоту и 2,5 метра в ширину.

Гараж с двумя воротами Источник tvojdoktor.com
Иногда домовладельцы принимают решение строить автомобильное помещение с широкими воротами двойной ширины. Такой вариант более экономичен. К тому же гараж с одними воротами получается лаконичнее и современнее по дизайну.

Гараж с одними воротами на 2 машины Источник mgprojekt.com.pl
Следует еще на этапе проектирования рассчитать качественную вентиляционную систему. Она нужна для того, чтобы выводились все испарения горючих веществ. Кроме того, без надлежащей вентиляции воздуха в помещении возникает повышенная влажность, а она вредна для всего, что сделано из металла.
Архитектурная разработка коттеджа с гаражом может быть создана индивидуально. Но можно купить уже готовый проект современного дома с гаражом на две машины
В этом случае важно учесть взаиморасположение заезда с проезжей части на участок и заезда в гараж. Расстояние между ними должно получиться минимальным

Гараж напротив заезда во двор Источник buildingq.ru
Проектируя автомобильную пристройку с внутренним входом нужно продумать защитную буферную зону. Это может быть небольшой коридор, тамбур или проходная кладовая. Такое помещение будет предотвращать проникновение неприятных автомобильных запахов в жилую часть здания.
Большой двухэтажный дом-баня с мансардой
Особенность проекта — наличие выхода на крыльцо прямо из парной. На первом этаже есть кухня с обеденной зоной, спальня, несколько санузлов, комната для отдыха и хозяйственное помещение. В доме есть все условия для полноценной жизни на протяжении всего года. Акцент сделан на отдыхе и активном времяпрепровождении.
Общая площадь — 87,44 м2; жилая комната — 26,49 м2.
Планировка 1 этажа:
- крыльцо № 1 — 7,28 м2;
- парилка — 7,54 м2;
- душевая — 4,02 м2;
- комната отдыха — 5,72 м2;
- санузел — 3,19 м2;
- техническое помещение — 5,72 м2;
- крыльцо № 2 — 3,15 м2;
- тамбур — 1,28 м2;
- холл — 3,38 м2;
- кухня-столовая — 9,66 м2;
- спальня — 10,27 м2;
- гардеробная — 1,98 м2;
- санузел — 4,30 м2.
На втором этаже находится просторная комната для игры в бильярд, вторая комната для отдыха и большой балкон.
Планировка мансардного этажа:
- спальня №1 и №2 — по 14,6 м2 каждая;
- комната для отдыха — 18,3 м2.
Достоинства и недостатки планировки дома с гаражом
По сравнению с раздельно стоящими гаражом и домом подобные строения обладают неоспоримыми преимуществами:
- занимают меньше места на участке. В результате удаётся более рационально распорядиться имеющейся площадью;
- позволяют сэкономить на количестве используемого материала, тем самым удешевляя строительство;
- имеют единые с жилым строением коммуникации, в том числе отопительную систему;
- могут использоваться для хранения не только автотранспорта, но и хозяйственных вещей;
- предоставляют возможность комфортного использования. Из жилой зоны внутрь пристройки можно попасть, не выходя на улицу. Это значительно облегчает процесс загрузки и разгрузки авто;
- обеспечивают более надёжную защиту от противоправных действий других лиц. Возможна установка единой охранной системы;
- гараж может использоваться в качестве спортзала или мастерской.
Для размещения строения требуется меньше места, чем для двух отдельно стоящих зданий
Чтобы подойти к машине, не надо выходить на улицу
Из недостатков стоит отметить повышенные требования к выполнению тепло— и звукоизоляции, чтобы не допустить проникновения шума и холода из пристройки внутрь жилой зоны. Также такое строение сложно возвести на участке со сложным ландшафтом. Значительные перепады по высоте потребуют значительных финансовых вложений.
Уровень теплоизоляции пристройки должен быть достаточным
Варианты загородных домов
Наиболее простым и дешёвым вариантом загородного дома является деревянное здание. Он хорошо держит тепло, экологичен и, как следствие, не оказывает никакого вредного воздействия на здоровье человека.


Прежде чем приступать к строительству, необходимо разработать проект будущего строения или просто поискать что-нибудь подходящее в Интернете, например, изучить проекты домов с гаражом и выбрать тот, который подходит вам.
Вообще, такой подход к строительству наиболее рационален, поскольку позволяет экономить время и деньги. Ведь далеко не каждый из нас способен создать собственный проект, следовательно, его всё равно придётся заказывать кому-то.

Тот, кому ты это закажешь, именно так и поступит, найдёт проект в Интернете и продаст его тебе как свой. Конечно, всегда есть вероятность того, что вы нарвётесь на честного человека, и он добросовестно отработает полученные от вас деньги. Выбирая проект будущего дома нужно определиться с местонахождением будущего места хранения вашего автомобиля.

Этапы составления проекта
Грамотное проектирование проводят в несколько этапов, чтобы выявить все технические нюансы и сделать дом удобным для владельца.
- бесплатные программы для проектирования домов и коттеджей;
- как сделать чертёж и проект дома.
Подготовка к строительству включает этапы:
- Определение типа постройки.
- Изучение состояния участка, его формы и размера, уже стоящих сооружений.
- Пробное бурение грунта, чтобы определить его состав и уровень грунтовых вод на участке.
- Изучение розы ветров.
По полученным данным составляют проект сооружения. Подбирают оптимальный фундамент (программа для проектирования и расчёта фундамента в статье), определяют уровень его заглубления, материал для стен и перекрытий, способы их утепления и прочее. Составляют деталировку, по которой будут работать монтажники.
Для оформления документации можно обратиться в мастерскую с лицензией на ведение такой деятельности. Минус такого подхода в том, что проектировщик из другого города не сможет посетить участок лично. Но это решаемо при необходимости.

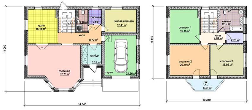
Планировка небольшого загородного дома с пристроенным гаражом
Проектная документация состоит из нескольких разделов:
- графическая оболочка или эскиз, по которому заказчик заранее может увидеть облик будущего строения;
- схема фундамента;
- план внутренних помещений;
- чертёж кровли;
- схема инженерных систем (канализация, водопровод, электричество и др.)
Проекты домов с мансардой и гаражом: отличительные черты коттеджей
Дом с мансардой – фото наглядно отображают различные варианты – является наиболее рациональным решением для небольшого участка, позволяющим увеличить жилую площадь без сокращения земельных угодий. Наличие личного транспорта становится причиной еще одного популярного приема – строительства дома с гаражом.

Проект дома с мансардой и гаражом для одного автомобиля
Проекты коттеджей с гаражом и мансардой обладают рядом преимуществ:
- благодаря совмещению двух функциональных зон удается снизить затраты, связанные с разработкой проекта и выполнением строительных работ;
- смежное расположение жилой зоны и гаража создает комфортную обстановку в последнем, что приводит к снижению затрат, связанных с отоплением гаража;
- создание внутреннего прохода позволяет беспрепятственно перемещаться из комнаты в гараж, не выходя на улицу, что особенно удобно в период ненастья;
- создание мансардного помещения обеспечивает увеличение жилой площади, что особенно актуально для одноэтажных построек;
- компактное многофункциональное сооружение позволяет существенно сэкономить свободную площадь земельного участка;
- строительство мансарды обойдется значительно дешевле, чем возведение второго этажа;
- мансардный этаж позволяет дополнительно утеплить жилое помещение, избавив его от сквозняков;
- пристроенный гараж будет стоить намного меньше, чем отдельно стоящий элемент;
- строения имеют стильный и презентабельный внешний вид, заметно выделяющий их на фоне других построек.
Утепляем, вентилируем и правильно планируем
Важным моментом при сооружении второго этажа в гараже является вентиляция – если в обычной ситуации запах бензина и масел это нормально, то для летней кухни или гостиной комнаты он будет неприемлем.
Для этого следует использовать приточно-вытяжную вентиляцию – на одной стене монтируется отверстие с втягивающим воздух с улицы вентилятором, на противоположной стене устанавливаем его «коллегу», вытягивающего воздух из помещения. В таком случае при любой погоде у вас будет циркуляция воздуха, и запах бензина не будет беспокоить.
Что же касается отопления, то для жилой мансарды необходимо утепление с помощью минеральной ваты или иного похожего по свойствам теплоизоляционного материала. Но для российских зим этого недостаточно. Если есть возможности – можно подключиться к централизованной системе отопления и установить радиаторы.
Но не во всех поселках существует подача пара от ТЭЦ, тогда вам на помощь придет газовый котел. Самым же дешевым вариантом отопления гаража со 2 этажом будет обогреватель или электрический конвектор. Если же для вас комфорт превыше всего, то еще на этапе проектирования двухэтажного гаража стоит задуматься о «теплом поле».
Читайте подробнее здесь о том, какие есть электрические приборы для отопления гаража.
Что же касается планировки, то для склада или мастерской очень важно обеспечить порядок. Заранее разметьте рабочую зону для верстака, поставьте множество стеллажей, шкафчиков крючочков и остальных мест для хранения. Не забудьте о хорошем освещении – так поиск среди множества запчастей маленькой детали будет быстрее
Старайтесь использовать с умом каждый доступный квадратный метр!
Не забудьте о хорошем освещении – так поиск среди множества запчастей маленькой детали будет быстрее. Старайтесь использовать с умом каждый доступный квадратный метр!
Как можно увидеть, мансарда для гаража – вовсе не излишество, а полезная и необходимая вещь, способная сэкономить множество места на участке. Все, что вам необходимо для постройки двухэтажного гаража — план, большое желание и денежные средства.
Размеры дома и участка
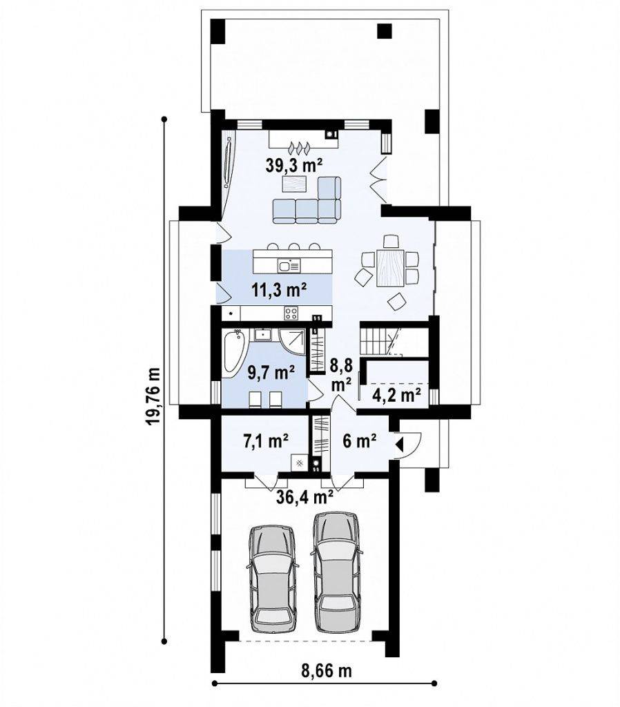
План коттеджа с гаражом на 2 машины.
Когда участок земли не отличается большими размерами, а потребность в большой жилой площади есть, двухэтажный дом с гаражом и мансардой станет лучшим вариантом.
Но здесь важно продумать мелочи, ведь, к примеру, если в доме есть пожилые люди или ограниченные в передвижении, они не станут восторгаться от каждодневных подъемов по лестницам, поэтому стоит рассматривать и одноэтажные постройки. Свои нюансы есть и готовых проектов домов для узких земельных участков. В подобных случаях оптимальным вариантом станет постройка, в которой одна стена сделана глухой, то есть – без дверей и окон
В подобном случае постройку получится возвести сразу на границе участка, а вдоль продольных стен расположить хозяйственные помещения
В подобных случаях оптимальным вариантом станет постройка, в которой одна стена сделана глухой, то есть – без дверей и окон. В подобном случае постройку получится возвести сразу на границе участка, а вдоль продольных стен расположить хозяйственные помещения
Свои нюансы есть и готовых проектов домов для узких земельных участков. В подобных случаях оптимальным вариантом станет постройка, в которой одна стена сделана глухой, то есть – без дверей и окон. В подобном случае постройку получится возвести сразу на границе участка, а вдоль продольных стен расположить хозяйственные помещения.
Спальни и гостиные лучше всего располагать в торцах дома – в подобном случае они обеспечены максимальным количеством естественного освещения. Вход лучше всего делать в во фронтоне или с торца здания.
Если неподалеку от жилья есть оживленная дорога, террасу или крыльцо нелишне дополнительно оградить зелеными насаждениями. Это украсит жилище и обеспечит неплохую защиту от пыли и лишнего шума.
Правильное утепление небольшого дома с мансардой и гаражом
Дома с мансардой нуждаются в организации правильного утепления. Гараж утеплять необязательно
Здесь важно организовать хорошую вентиляцию. Самым сложным этапом является утепление мансардного этажа
Здесь важно исключить возникновение сквозняков и проникновение холодных порывов ветра. Также следует должным образом организовать гидроизоляцию. Выбор утеплителя зависит от типа помещений, что находятся под мансардой, и от длительности времяпрепровождения на этаже.
Наиболее популярный материал – пенопласт. Он поставляется в плитах, благодаря чему обеспечивается его удобная транспортировка и монтаж. Материал характеризуется легким весом, хорошими теплоизоляционными свойствами, низкой стоимостью. Среди недостатков можно выделить легкость воспламенения и большую вероятность раздробления изделия при монтаже.

Наиболее популярным материалом для утепления домов является пенопласт
Еще одним бюджетным материалом, что часто используется для утепления мансард, является стекловата, имеющая высокую степень теплоизоляции и устойчивость к воспламенению. Однако работать с материалом тяжело, поскольку он выделяет в воздух опасную для здоровья человека стеклянную пыль, которая может повредить дыхательные пути. Монтаж изделия следует производить в специальных средствах защиты, оберегающих органы дыхания и кожу от повреждения.
Эквивалентом стекловаты, который обладает теми же характеристиками, но лишен недостатков, является минеральная вата. Помимо этого, материал характеризуется устойчивостью к повышенной влажности, хорошей паронепроницаемостью, невосприимчивостью к зарождению микроорганизмов, пониженными теплопроводящими свойствами и экологичностью. Такие отличительные достоинства отражаются на стоимости материала.
Такой пакет включает в себя:
- выбор типа фундамента
- расчет технических параметров:
Глубина закладки подошвы фундамента
– несущая способность
– показатели напряжения почвы под основанием фундамента
– площадь сечения рабочей арматуры, проч.
- подробные чертежи нулевого цикла
- ведомость затрат стройматериалов.
Адаптация фундамента дает полную гарантию его прочности, а значит и надежности всего здания. Вы гарантированно избавляетесь от таких проблем, как усадка и трещины во время эксплуатации уже готового дома. Причем, зачастую адаптированный фундамент оказывается дешевле, чем вариант, первоначально заложенный в проекте. А это поможет сэкономить материалы и финансовые средства.
Последовательность работ при возведении гаража
Строительство такого объекта с жилой комнатой отличается от возведения обычного гаража рядом особенностей. Строительная компания предоставит типовой проект или возведет строение по индивидуальным эскизам. В первом случае вы используется готовая документация и чертежи, которые были разработаны заранее. При создании персонального проекта будут учтены ваши личные пожелания, но такой вариант обойдется дороже.
Чтобы получить хороший результат лучше обратиться к специалистамИсточник assz.ru
Согласно первому, у вас есть возможность выбора готовой документации и проектов, которые были разработаны заранее.
Ключевые этапы возведения включают:
Заливку фундамента.Лучшим вариантом под проект гаража на 2 машины с мансардой традиционно считается монолитное основание, которое обустраивают в заранее вырытом котловане. Подготовленную площадь либо заливают тяжелым бетоном, либо укладывают готовые железобетонные плиты.
Возведение стен гаража из кирпичаИсточник assz.ru
- Подготовку дверных и оконных отверстий.
- Сооружение крыши на мансардном этаже.Воплощая в жизнь проект гаража на две машины с мансардой, следует учитывать, что во время непогоды дождевые капли могут создавать сильный шум, стуча по профнастилу. Если такой вариант не подходит, рекомендуется отдать предпочтение черепице или шиферу.
- Обустройство мансардных окон. При выборе окон для мансарды необходимо руководствоваться светопропускной способностью и теплоизоляционными свойствами представленных на современном рынке моделей. Рекомендуемое соотношение площади остекления по отношению к площади пола мансардного этажа – 1:10. Коэффициент теплопередачи должен составлять меньше 0,8 Вт/м2. «Теплые» окна позволят сократить затраты на обогрев помещения в холодное время года.
- Подключение коммуникаций.В гараже с мастерской, баней и жилой комнатой не обойтись без электричества, холодного и горячего водоснабжения, газа и канализации. Если планируется постоянное проживание в смежной с баней жилой комнате, необходимо также позаботиться об интернете и средствах связи.
- Работы по утеплению и гидроизоляции крыши и стен.Это особенно актуально, если вы планируется круглогодичное проживание в мансарде.
Если строение будет использоваться не только в теплый период, то оно требует хорошего утепленияИсточник kamtehnopark.ru
Последний этап – это отделочные работы.Внутренняя и внешняя отделка выполняется в соответствии с вашими пожеланиями и эстетическими предпочтениями.
Основные сложности планирования двухэтажных домов
Только профильная организация может выполнить чертежи и проекты домов или коттеджей, бесплатно как бонус может быть предложена 3D панорамная модель готового плана.Специалисты должны выполнить помимо проекта необходимые расчеты нагрузок и подобрать соответствующие материалы. Планировка второго этажа влечет за собой усиление основания о подбор соответствующих плит перекрытия. Неправильные расчеты влекут за собой опасность обрушения конструкций.
Все внутренние коммуникации необходимо провести на второй этаж. Для этого следует выполнить проект водопровода и канализации со сложной разводкой. Кроме того необходимо продумать грамотный обогрев дома. Для этого может подойти котел с тепловым носителем внутри контура. Он обеспечит циркуляцию горячей воды по всему периметру дома.
Особое внимание следует уделить циркуляционному насосу, который обеспечивает принудительное движение воды по внутреннему трубопроводу. Правильно подобранная производительность избавит от проблем в холодный период года
Возведение двухэтажной конструкции требует установки лесов
Это дополнительная статья расходов, однако, без нее невозможно выполнить подъем материалов и отделку наружных фасадов
Возведение двухэтажной конструкции требует установки лесов. Это дополнительная статья расходов, однако, без нее невозможно выполнить подъем материалов и отделку наружных фасадов.
Наш климат требует дополнительного утепления. Это также увеличит стоимость дома с одной стороны, но существенно сэкономит средства на последующем отоплении дома.
Система отопления двухэтажного дома
Выбор места под строение
Как и любое строение, кирпичный, брусовый или каркасный гараж с мансардой нуждается в подходящем месте для возведения. Компактное размещение функциональных зон внутри постройки позволяет сократить площадь основания по сравнению с другими вариантами постройки гаража, бани, мастерской и жилого помещения. Прежде чем выбрать место для сооружения с мансардным этажом, следует учесть такие моменты:
Наличие удобного подъезда. Возведение гаража в неподходящем месте приведет к постоянным проблемам с выездом и заездом.
Не на последнем месте в обустройстве любого гаража – удобный подъездИсточник rolistes.org
- Комфортное расстояние до ворот. Постройка должна располагаться на расстоянии от 4-5 м до ворот, чтобы в случае необходимости можно было припарковать машину, не заезжая в гараж.
- Подходящие ландшафтные условия. Для строительства нужно необходима ровная площадка, без холмов, возвышений и прочих неровностей рельефа.
- Расположение инженерных сетей. При выборе участка под строительство следует убедиться в отсутствии коммуникаций под будущим объектом.
Если проект гаража на 2 машины с жилой мансардой предполагает возведение постройки рядом с домом, оптимальное расстояние между двумя объектами составит 5-7 метров. Во время непогоды вы сможете легко добраться до гаража, выйдя из дома. Навес над дорожкой от дома защитит от дождя или снега.
Заключение
Мансарда над гаражом – один из вариантов удачного распределения пространства и разделения постройки на функциональные зоны. Тщательно продумав планировку, получите ряд преимуществ и дополнительных возможностей. При выборе строительной компании, которая претворит вашу задумку в жизнь, следует учитывать опыт работы при выполнении подобных проектов.
Прочитать позже
Отправим материал на почту
Распечатать
Длина гаража:
Практичный минимум должен составлять 6 м, при этом оставшееся пространство используется для полок для хранения инструмента или как мастерская.
Как бы вы не использовали мансардный этаж — одно из его главных преимуществ, что шумы не достигают главного дома — самое место для мастерской или музыкальной студии.
Автономный гараж на две машины не должен быть слишком большим, чтобы не доминировать над домом.
Гараж может быть местом не только для автомобиля. Дополнительная площадь позволит вам хранить садовое оборудование и инструменты или предметы домашнего обихода , которых негде «втиснуть».
Практичный вариант гаража для семьи с частыми визитами гостей — дополнительная стоянка под навесом рядом с гаражом и гостевая комната в мансарде.
Задняя часть гаража, обращенная в сад используется как зона отдыха с мангалом.
- гараж 31,88 м²,
- места для хранения 6,69 м²,
- туалет 3,18 м²
Планировка мансардного этажа:
- прихожая 4,47 м²,
- кухня 9,86 м²,
- комната 8,45 м²,
- ванная 3,03 м²,
- балкон 8,17 м².
Если вы ищите проект гаража, которые включает в себя приятные бонусы, то обратите внимание на это решение — гараж с беседкой с мангалом
Полезная площадь гаража 17,5 м², общая площадь мансарды 38,3 м², полезная 7,3 м²
Двухэтажный гараж, отдельно стоящий, из кирпича с двускатной крышей.
В задней части постройки есть кухня и ванная комната, внешняя лестница ведет на мансардный этаж.
Планировка гаража:
- 1.1 — ванная 4,35 м²
- 1.2 — мастерская 5,71 м²
- 1.3 — кухня 14,52 м²
- 1.4- гараж 34,51 м²
- 1.5 -терраса 32,15 м²
Площадь второго этажа почти 40 м2 была разделена на 2 комнаты плюс дополнительная ванная комната и холл. Эта часть здания может быть выделена в студию, помещение под аренду или квартиру для ваших гостей.
Планировка мансарды над гаражом:
- 2.1 — лестница 4,11 м²
- 2.2 — балкон 9,81 м²
- 2.3 — холл 12,63 м²
- 2.4 — ванная 4,90 м²
- 2.5 — комната 7,79 м²
- 2.6 — комната 14,40 м²
Чтобы лучше использовать полезное пространство гаража можно совместить постройку с небольшой террасой с видом на сад.
Планировка гаража и мансарды:
- гараж 29,90 м²
- кладовка 5,20 м²
- коридор 5,40 м²
- терраса 20.00 м²
- лестница 5,00 м²
- прихожая 13.00 m²
- ванная 4,60 м²
- спальня 9,70 м²
- гостиная 11,30 м²
- кухня 4,40 м²
Если вы планируете построить двухэтажный гараж с квартирой на чердаке, этот проект может оказаться настоящим хитом. Гараж представляет собой классическое кирпичное здание в форме, увенчанное крутой двускатной крышей. Традиционная архитектура гаража позволяет легко вписывать в любую среду.
Двое ворот, 260 х 224 см, ведут к гаражной части, запланированной на первом этаже. Внутри можно легко припарковать три машины, есть также место для велосипедов, косилок, мотоциклов или другого оборудования. Дополнительные функции хранения или небольшой мастерской будет выполнять небольшое подсобное помещение, размещенное в углу гаража.
Планировка мансарды над гаражом:
- 2.1 — холл 14,16 м²
- 2.2 — кухня 4,17 м²
- 2.3 — ванная 3,59 м²
- 2.4 — комната 18,76 м²
- 2.5 — комната 15,29 м²
- 2.6 — балкон 4,86 м²
При планировании постройки гаража стоит задуматься об использовании пространства возле него , так этот проект гаража расширяет свою функциональность с помощью небольшого навеса, который служит дополнительным местом для парковки, а с другой стороны — является балконом для второго этажа.
Любое дополнительное пространство в гараже , такие как, полки , рабочие столы и шкафы , позволит более широко использовать эту площадь для различных целей. Чем больше места в гараже, тем удобнее будет им пользоваться.
Мечта многих водителей — хорошо оборудованная небольшая домашняя мастерская, которую, в идеале, хотелось бы использовать как свое личное пространство, и ваш гараж идеально подходит для этой цели.
Давайте подумаем о гараже в более далекой перспективе — ведь, жаль не использовать его для других целей. Из захламленного редко используемого помещения вы можете создать просторный, практичный и функциональный интерьер, который будет использоваться каждым членом семьи.
Что вы думаете о мансарде над гаражом? Мы что-то забыли или вы с чем-то не согласны? Пишите свои : все предложения приветствуются.



















![Проект дома с 2 гаражами (100+ идей) [#лучшие проекты 2019]](https://gbi-glav.ru/wp-content/uploads/5/6/1/5617cb44fb7b40136c70e5de02285e33.jpeg)

















