Графическая часть межевого плана
Помимо текстового блока, межевой план включает в себя графическую часть – отображение полученных сведений, расчетов и измерений на схемах и чертежах. В состав обязательных разделов графической части межевого плана Приказ № 921 включает схему расположения объекта и чертеж участка или его частей. К дополнительным разделам графического блока, которые могут заполнять при проведении отдельных видов кадастровых работ, относятся схема геодезических построений и абрисы узловых точек границ объекта.
Схема расположения земельных участков
Графическая часть межевого плана оформляется одновременно для всех образуемых наделов или их частей. При уточнении границ и площади кадастровый инженер проводит графическое отображение границ каждого уточняемого участка. Схема расположения участков изготавливается на основе сведений ЕГРН, содержащих картографические данные, либо с использованием иного картографического материала.
При заполнении указанного раздела, местоположение участка отображается в графической форме относительно смежных объектов и границ кадастрового деления, а на схеме указываются:
- границы объекта, на котором проводились кадастровые работы, а также границы смежных наделов;
- границы муниципальных образований или населенных пунктов;
- границы кадастрового деления;
- границы территориальных зон, объектов культурного наследия и т.д.
Если межевой план изготавливается при формировании и образовании нового объекта, на схеме будут отражены земли или участки общего пользования.
Чертеж земельных участков и их частей
Чертеж участка или его частей является обязательным элементом межевого плана. В содержание этого блока включаются следующие данные:
- местоположение существующих, новых и прекращающих существование характерных точек границ;
- части границ участков, а также частей объектов;
- обозначения земельных наделов и характерных точек границ.
При переносе указанных сведений в чертеж, кадастровый инженер обязан использовать масштаб, обеспечивающий читаемость местоположения характерных точек границ. На поле чертежа отображаются все образуемые или уточняемые участки, а также их части. Оформление чертежа допускает использование выносок или врезок на отдельных листах, если это необходимо для отображения отдельных точек границ.
Если межевой план составляется для уточнения границ участка, на обороте чертежа оформляется акт согласования. При заполнении указанного акта, в обязательном порядке указываются паспортные данные правообладателей смежных объектов, либо сведения об их представителях.
Дополнительные разделы графической части
Схема геодезических построений учитывает сведения, полученные в результате измерений участка. В частности, этот раздел будет включать в себя:
- схематичное изображение объекта, в отношении которого проводились кадастровые работы;
- расположение на местности пунктов геодезической основы;
- расположение точек съемочного обоснования, и т.д.
Содержание указанной схемы может существенно отличаться в зависимости от использованных методов определения координат. Наиболее точным является метод спутниковых геодезических измерений, при котором на схеме отражаются пункты и базовые станции геодезической основы, а также расстояние от базовых станций до ближайшей характерной точки границы.
Приказом № 921 регламентировано условие, при котором в межевой план включается раздел «Абрисы узловых точек границ земельных участков» – если узловая точка располагается в радиусе до 40 метров от трех, или более, долговременных и четко опознаваемых объектов (например, элементы объектов капитального строительства – зданий, сооружений и т.д.). Узловой точкой признается характерная точка, общая для границ трех и более земельных наделов. При отображении абриса указывается расстояние до опознаваемых объектов местности.
Алгоритм подготовки ПМТ и ППТ
Методика подготовки документов для проекта планировки территории и проекта межевания территории подразумевает два варианта – обратиться в административный орган или заказать в коммерческой организации. Каждый из вариантов обладает списком нюансов, которые следует соблюдать на момент подачи заявления. Подаваемые документы прописаны в нормативах СНиП №30-02-97.
Подача заявления в администрацию
Метод приемлем, если муниципалитет предоставляется такую услугу. Заказчику необходимо подать заявление в отдел градостроительства и архитектуры. После этого получить задание технического порядка и соответствующим образом оформить заказ. Как правило, обращают к руководителю административного органа либо другому уполномоченному лицу.
Перечень документации, подающейся совместно с заявлением:
- свидетельство на собственность;
- эскиз Генерального плана земельного участка, в т. ч. коммуникационные схемы;
- кадастровый паспорт участка;
- выписка из кадастра о капитальных сооружениях, в т. ч. если их нет;
- топографическая карта.
После получения документов проводятся подготовительные работы по созданию проекта. Так, анализируется документация от заявителя, а также сведения, находящиеся в распоряжении администрации
В этом случае отдельное внимание уделяют:
- проведенному анализу воды в районе предполагаемой застройки;
- архитектурные характеристики;
- сведения об уровне экологичности предстоящих мероприятий;
- обеспечение технического порядка;
- исследование результатов застройки.

Согласно проведенному изучению выдается решение о возможности проведения работ на конкретном земельном участке. При положительных результатах административные специалисты формируют ТЗ. После этого проводятся кадастровые мероприятия.
В разработку ПМТ и ППТ включают условия для выполнения топографической карты, скопированной с кадастрового плана земельного участка и хранящейся в Росреестре. Примечательно, что в информационном банке планы имеют корректные границы по периметру ЗУ. На эту базу наносят линии улиц, развязки и т. п.
После того как графическая и текстовая часть вкупе с приложениями составлены, документ проходит процедуру согласования в местном муниципалитете. Для этого потребуется взять выписку из Генплана по застройке местности, в которую входит конкретный участок земли. Процедура согласования осуществляется в рамках публичного слушания. Затем документация согласовывается с местными электро- и водоснабжающим организациями. Если участок следует газифицировать, то документ проходит и там соответствующую процедуру. Для обустройства инженерной системы следует получить ситуационный план земельного участка.
Размещение заявки в коммерческих организациях
Актуальность метода получения ПМТ и ППТ проявляется при получении отказа в подготовке документов от администрации населенного пункта. Такое право дается заказчику в соответствии с распоряжениями на региональном уровне и локальными актами. В такой ситуации заявитель обращается в местные организации, сфера деятельность которых — архитектурные и геодезические изыскания.

Подготовка документации выполняется по аналогичному алгоритму. Однако есть возможность заказать разработку ТЗ и согласование с административными органами исполняющей организацией. В такой ситуации допускается отсутствие эскиза Генплана застройки конкретного земельного участка, т. к. компания-исполнитель получает его на основании личных полномочий.
Разработка проектов ложится на плечи сотрудников компании, которые в самостоятельном порядке копируют кадастровую карту и наносятся объекты предстоящего проектирования, учитывая условия и требования, регламентированные техническим заданием.
Состав проекта
Документ делится на две части: основную утверждаемую информацию и материалы по ее обоснованию. Утверждаемая информация становится градостроительным законом для конкретной отдельно взятой территории.
В нее входит:
- Подробная схема местности (чертеж), где должны быть обозначены все основные объекты инфраструктуры и их границы. К ним относятся скверы, парки, автомобильные дороги, линии электропередач, водопровод и др.
- Описание местности (все указанные в описании характеристики не должны противоречить Генеральному плану застройки и Плану землепользования). Также характеристика включает в себя всю информацию об организации жизнедеятельности жильцов района: коммунальные услуги и др.
- Порядок развития местности, куда входит пошаговое проектирование района, план ремонта и реорганизации сооружения капитального строительства, а также стратегия будущего развития в конкретном месте дорог, объектов инфраструктуры и других необходимых для жизни людей составных частей.
Нажмите для просмотра полного изображения
В обоснование входит:
- карта;
- заключение инженеров;
- объяснение расположения границ между сооружениями;
- схематическое обоснование расположения транспортных путей;
- план организации мероприятий по охране природы района;
- другая информация, которая позволит сделать вывод, что проект застройки района взят не с неба, а в результате долгой работы множества экспертов.
Нюансы
Нюансы, которые могут возникать при составлении проектов планировки и межевания земельных участков, зависят от категорий земель, где предполагается строительство.
Особая экономическая зона
При разработке плана учитываются параметры земельного надела, его расположение относительно структуры муниципального образования, также внимание уделяется существующему и планируемому окружению. На основании анализа указанных данных выбирается формат строительства
Особые экономические части РФ
Требуется соблюдение условий:
- связь с окружающей средой;
- плотность застройки низкая;
- размещение на территории удаленной от центра или пригорода;
- наличие транспортных связей;
- территория благоустроена;
- прочие.
План СНТ
При межевании земельного участка, расположенного на территории СНТ необходимо согласовать процедуру с лицами, чья земля расположена по соседству, так как могут быть задеты их интересы.
Для получения согласия можно провести общее собрание либо обратиться к каждому соседу по отдельности. Приглашение на собрание обязательно должно быть в письменной форме. Отправляется оно с уведомлением о получении.
В случае, когда обратиться к соседу при помощи письма, отправленного почтовой связью нет возможности – можно поместить объявление в газете.
Составление планировки и межевания является достаточно трудоемким, при этом оформление этих документов обязательно. При коллективном строительстве, оплата работы производится за счет совместных средств, что в меньшей степени отражается на состоянии бюджета каждого, нежели, когда участник один.
Второй комментарий к статье 43 ГрК РФ
1. Разработка проектов межевания территории в соответствии с ч. 5 ст. 41 Кодекса является необязательной (в зависимости от задания на подготовку документации по планировке территории) составной частью подготовки документации по планировке территории, порядок подготовки которой определяется соответствующим Положением (см. Постановление Правительства РФ от 15 февраля 2011 г. N 77 “О порядке подготовки документации по планировке территории, осуществляемой по решению уполномоченного федерального органа исполнительной власти”). При этом основанием проекта межевания территории согласно ч. 9 ст. 42 Кодекса обозначен проект планировки территории, в составе которого (или отдельно) в порядке ч. 3 комментируемой статьи осуществляется подготовка такого проекта. Следует отметить, что общие правила межевания и установления границ земельных участков регламентированы нормами ЗК РФ, согласно ч. 5 ст. 11.4 которого проект межевания территории является основанием раздела земельного участка, предоставленного для комплексного освоения в целях жилищного строительства. Иными словами, проект межевания территории обусловливает формирование земельного участка – основного объекта правоотношений в сфере земельного законодательства. Например, в соответствии с п. 2 ч. 3 ст. 16.2 Федерального закона от 24 июля 2008 г. N 161-ФЗ “О содействии развитию жилищного строительства” решения Федерального фонда содействия развитию жилищного строительства об образовании земельных участков из земельных участков Фонда принимаются, при наличии утвержденного проекта межевания территории, в составе документации по планировке территории, в границах которой расположены земельные участки Фонда. При разработке проекта межевания территорий в порядке СНиП 11-04-2003. Инструкция о порядке разработки, согласования, экспертизы и утверждения градостроительной документации (утв. Постановлением Госстроя РФ от 29 октября 2002 г. N 150) должны соблюдаться три общих требования: – установление границ проектируемых земельных участков в зависимости от функционального назначения территориальной зоны и обеспечения условий эксплуатации объектов недвижимости, включая проезды и проходы к ним; – запрет изменения границ существующих землепользований при разработке плана межевания, за исключением случаев изъятия земель для государственных и общественных нужд, в соответствии с законодательством или при согласии землепользователя на изменение границ земельных участков; – запрет межевания территорий, занятых транспортными и инженерными коммуникациями и сооружениями, а также земель общего пользования.
2. Требованиями комментируемой статьи законодатель установил правовые основы подготовки и состава проектов межевания территорий, а именно: – определение в ч. 1 настоящей статьи предмета подготовки проектов межевания территорий (застроенные и подлежащие застройке территории, расположенные в границах элементов планировочной структуры); – обозначение в нормах ч. 2 комментируемой статьи двух целей подготовки проектов межевания застроенных территорий, а также двух целей подготовки проектов межевания подлежащих застройке территорий; – регламентация требованиями ч. 3 рассматриваемой статьи двух видов процедуры подготовки проектов межевания территорий (в составе проектов планировки территорий или в виде отдельного документа); – установление в нормах ч. 4 рассматриваемой статьи правил определения размеров земельных участков в границах застроенных территорий с учетом фактического землепользования и градостроительных нормативов и правил, действовавших в период застройки указанных территорий; – определение в ч. 5 настоящей статьи исчерпывающего перечня восьми категорий сведений в составе проекта межевания территории, включающего в себя чертежи межевания территории; – обозначение в нормах ч. 6 комментируемой статьи правила подготовки в порядке ст. 44 Кодекса градостроительных планов земельных участков, подлежащих застройке, и градостроительных планов застроенных земельных участков в составе проектов межевания территорий.
Как проходит процедура утверждение проекта планировки и межевания территории
- вступительную записку;
- чертежи планировки территории;
- положения о расположении капитальных строений;
- основные характеристики развития местности: плотность, параметры застройки этого участка;
- развитие транспортной и социальной эксплуатации, инженерно-техническое обеспечение.
Мало просто разработать строительную документацию – важно получить разрешение на проведение работ согласно проекту. Однако не всем известно, куда надо обращаться за утверждением официальных бумаг и какие трудности могут возникнуть в связи с этим
Что обязательно нужно знать перед тем, как отнести проект на утверждение?
Состав проекта межевания территории
Проект межевания территории представлен несколькими частями:
- основной, которая впоследствии подлежит утверждению;
- и материалов, обосновывающих целесообразность искомого проекта.
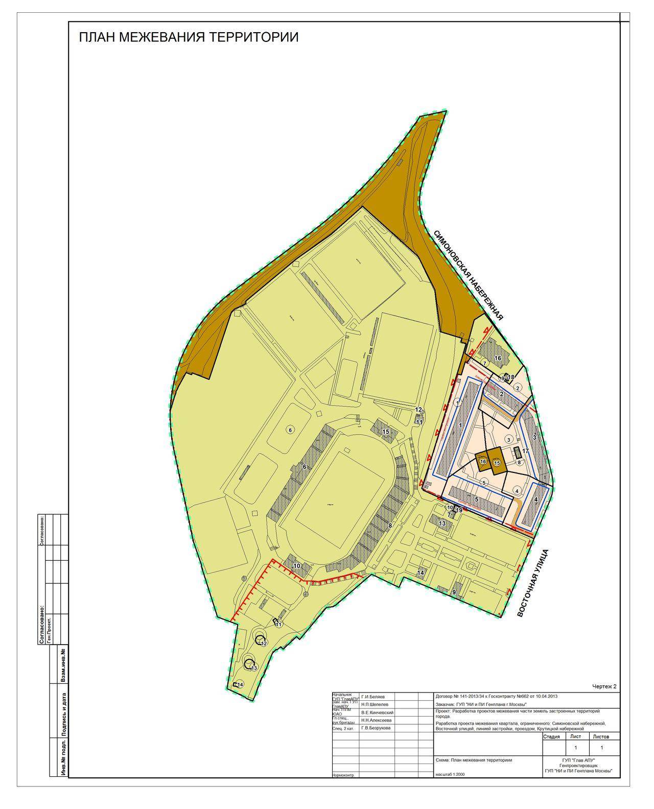
Проект межевания представлен, по сути своей, чертежом, на котором отражается ряд важнейших элементов будущего участка, а именно:
- красные линии (границы), уже утвержденные в ходе проектирования, либо измененные в ходе межевания;
- отступ от линий красного цвета, определяющий наличие мест, в которых могут впоследствии размещаться здания, различные постройки и сооружения;
- границы земельных участков, которые присутствуют на кадастровом проекте, а также номера, присвоенные каждой из образованных территорий;
- границы, обрамляющие территории, на которых расположены объекты, входящие в список культурного наследия;
- территории, в рамках которых действуют особые правила пользования;
- зоны действия публичных сервитутов.

Проект межевания территории — специализированная документация, призванная помочь специалистам тщательно продумать, каким изменениям впоследствии будет подвергнута та или иная земельная территория
Кроме того, в искомом документе обязательно производится указание:
- площадей участков или их частей, подлежащих изменению;
- земельных участков, образующихся впервые, которые впоследствии станут объектами, подлежащими общему использованию;
- тип использования участков.

Существуют четкие требования относительно содержания проекта межевания
ПЕРЕЧЕНЬ ОСНОВНОЙ ИСХОДНОЙ ИНФОРМАЦИИ
- Данные государственного кадастра недвижимости о границах субъекта РФ, границах муниципальных образований, границах населенных пунктов, зонах с особыми условиями использования территории, территориальных зонах и земельных участках на проектируемой территории.
- Материалы топографо-геодезических и инженерно-геологических изысканий:
2.1. Цифровая картографическая основа М 1 : 25 000 и ниже.
2.2. Карты (планы), представляющие собой ортофотопланы местности, масштаба 1 : 25 000 и ниже.
2.3. Иные материалы.
- Материалы опорных (дежурных) и адресных планов, регистрационных планов подземных инженерных коммуникаций и атласов геологических выработок (в населенных пунктах).
- Инвентаризационные данные по землепользованию, жилищному фонду, предприятиям и учреждениям обслуживания, другим объектам недвижимости.
- Данные об улично-дорожной сети, гаражах и стоянках индивидуального автотранспорта, организации дорожного движения, транспортном обслуживании территории.
- Историко-архитектурные планы, проекты зон охраны памятников истории культуры.
- Информация:
а) о размещении объектов федерального значения, объектов регионального значения, объектов местного значения;
б) о зонах с особыми условиями использования территорий;
в) о территориях объектов культурного наследия;
г) об особо охраняемых природных территориях;
д) о территориях, подверженных риску возникновения чрезвычайных ситуаций природного и техногенного характера;
е) о результатах инженерных изысканий;
ж) о месторождениях и проявлениях полезных ископаемых;
з) иная информация о состоянии, об использовании, ограничениях использования территории.
- Разрешительная документация:
8.1. Градостроительные планы земельных участков.
8.2. Архитектурно-планировочные задания, выданные по инициативе застройщика или заказчика.
8.3. Разрешения на строительство, реконструкцию и ввод в эксплуатацию объектов капитального строительства.
8.4. Разрешения на отклонение от предельных параметров разрешенного строительства, реконструкции объектов капитального строительства.
8.5. Решения органов государственной власти и местного самоуправления о предоставлении земельных участков физическим и юридическим лицам.
8.6. Решения органов государственной власти и местного самоуправления о резервировании земель.
8.7. Решения органов государственной власти и местного самоуправления об изъятии земельных участков для государственных и муниципальных нужд.
8.8. Соглашения о выкупе земельных участков, принадлежащих физическим и юридическим лицам, в государственную или муниципальную собственность.
8.9. Иная разрешительная документация, устанавливающая или изменяющая правовой режим использования территории.
- Сведения о стратегических и социально-экономических документах, на основании которых осуществляется размещение линейного объекта.
- Нормативные правовые акты органов государственной власти (наименование субъекта РФ) и органов местного самоуправления (наименование муниципального образования) о составе и содержании документации по планировке территории.
- Региональные и местные нормативы градостроительного проектирования.
- Градостроительная документация (утвержденная и проекты):
12.1. Схемы территориального планирования РФ.
12.2. Схемы территориального планирования субъекта РФ.
12.3. Документы территориального планирования муниципальных образований.
12.4. Документация по планировке территорий.
12.5. Правила землепользования и застройки.
- Комплексная транспортная схема муниципального образования.
- Комплексная инженерная схема муниципального образования.




































